37 m² Prefab Tuinkantoor – Praktisch, Stijlvol en Uit te Breiden met 3 Gevelopties

Sleutelklaar geleverd met pleistergevel – uitbreidbaar met hout of steenstrip

Vanaf €111.000 excl. btw

Het 37 m² prefab tuinkantoor van Kaynad is de perfecte oplossing voor wie op zoek is naar een stijlvolle, comfortabele en praktische werkruimte aan huis. Deze unit wordt standaard geleverd met een moderne pleistergevel, maar je kunt ook kiezen voor hout of steenstrip om het ontwerp volledig af te stemmen op jouw tuin of smaak. Het model is volledig geïsoleerd en turnkey geplaatst binnen één dag – zonder verbouwstress of langdurige bouwtijd.

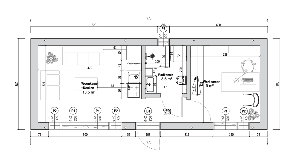
Dankzij de doordachte indeling beschikt dit tuinkantoor over een open woonkamer met keukenhoek, een aparte werkkamer van 9 m², een complete badkamer met inloopdouche en toilet, en een technische ruimte. Alles is ontworpen voor dagelijks gebruik, met aandacht voor comfort en functionaliteit.

Net als al onze modellen wordt deze unit prefab geproduceerd in onze fabriek in Weert. We gebruiken hoogwaardige en recyclebare materialen, dampremmende folies en energiezuinige isolatietechnieken die voldoen aan de BENG-normen. Hierdoor is de ruimte het hele jaar door comfortabel te gebruiken – zowel in de zomer als in de winter.

De oplevering gebeurt binnen 2 tot 8 weken. Dankzij ons prefab systeem wordt het gebouw op locatie in één dag geplaatst – inclusief afwerking en technische installatie. Zo creëer je zonder gedoe een volwaardige werk- of praktijkruimte in je eigen tuin.

Een idee voor een woning, maar nog vragen?
Of je nu droomt van een compacte woning, een ruime gezinswoning of een stijlvolle mantelzorgwoning — bij Kaynad staan we klaar om je te helpen. Vraag vrijblijvend informatie aan of plan een gesprek met ons in. Samen brengen we jouw woonwensen tot leven.
Please enable JavaScript in your browser to complete this form.
name

De fundering is inbegrepen. Transportkosten zijn afhankelijk van de locatie van jouw perceel. Ook de uitvoering van de fundering kan variëren op basis van bereikbaarheid en bodemgesteldheid.

🔍 Vul het formulier in en vermeld de locatie van je perceel om een gratis en nauwkeurige offerte te ontvangen. Zo weet je exact wat je kunt verwachten – zonder verrassingen.

 

Stel je vraag
Vul het formulier in voor informatie, prijzen of een persoonlijk gesprek.
Please enable JavaScript in your browser to complete this form.
name