Prefab Tuinkantoor in Roermond

Comfortabel werken in uw eigen tuin

Comfortabel werken in uw eigen tuin

Voor deze klant in Roermond realiseerden wij een volledig instapklaar prefab tuinkantoor van circa 36 m².

Een rustige werkplek dicht bij huis, volledig los van de woning en het hele jaar comfortabel te gebruiken dankzij hoogwaardige isolatie en een moderne afwerking.

Prefab Tuinkantoor in Roermond – Compleet, Geïsoleerd en Op Maat

Project in Roermond: een comfortabel tuinkantoor met alles erop en eraan

Voor deze klant in Roermond realiseerden wij een volledig instapklaar prefab tuinkantoor van circa 36 m². Het doel was een rustige en comfortabele werkplek creëren dicht bij huis, maar volledig los van de woning.

Dankzij hoogwaardige isolatie, een moderne indeling en een strakke afwerking is een multifunctionele ruimte ontstaan die het hele jaar door comfortabel te gebruiken is.

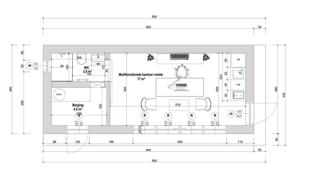
Indeling van het tuinkantoor – slim en efficiënt gebruik van ruimte

Het tuinkantoor is ontworpen met een praktische en comfortabele indeling die geschikt is voor dagelijks gebruik.

Multifunctionele kantoorruimte

Een ruime werkplek met veel daglicht en voldoende ruimte voor werken, overleg en ontspanning.

Badkamer

Voorzien van modern sanitair met toilet en wastafel voor extra comfort.

Berging

Handige opslagruimte met technische installaties en warmwaterboiler.

Kitchenette

Compacte keuken met spoelbak en apparatuur — ideaal voor lange werkdagen.

 

Productie en plaatsing vanuit onze fabriek in Weert

Dit tuinkantoor is volledig geproduceerd in onze eigen productiefaciliteit in Weert en vervolgens op locatie geplaatst. Dankzij prefab bouwmethodes kon het project snel en efficiënt worden gerealiseerd met minimale overlast voor de omgeving.

De buitengevel is afgewerkt met duurzame gevelbekleding die zorgt voor een warme en moderne uitstraling en perfect past in elke tuinomgeving.

Waarom kiezen voor een prefab tuinkantoor van Kaynad

Snelle plaatsing

Grotendeels voorbereid in de fabriek en binnen korte tijd geplaatst op locatie.

Volledig op maat ontworpen

Afmetingen, indeling en afwerking afgestemd op uw wensen en tuin. 

Duurzaam en energiezuinig

Gebouwd met hoogwaardige isolatie en duurzame materialen voor optimaal comfort.

Geschikt voor alle seizoenen

Dankzij volledige isolatie en ventilatie is het tuinkantoor het hele jaar comfortabel.

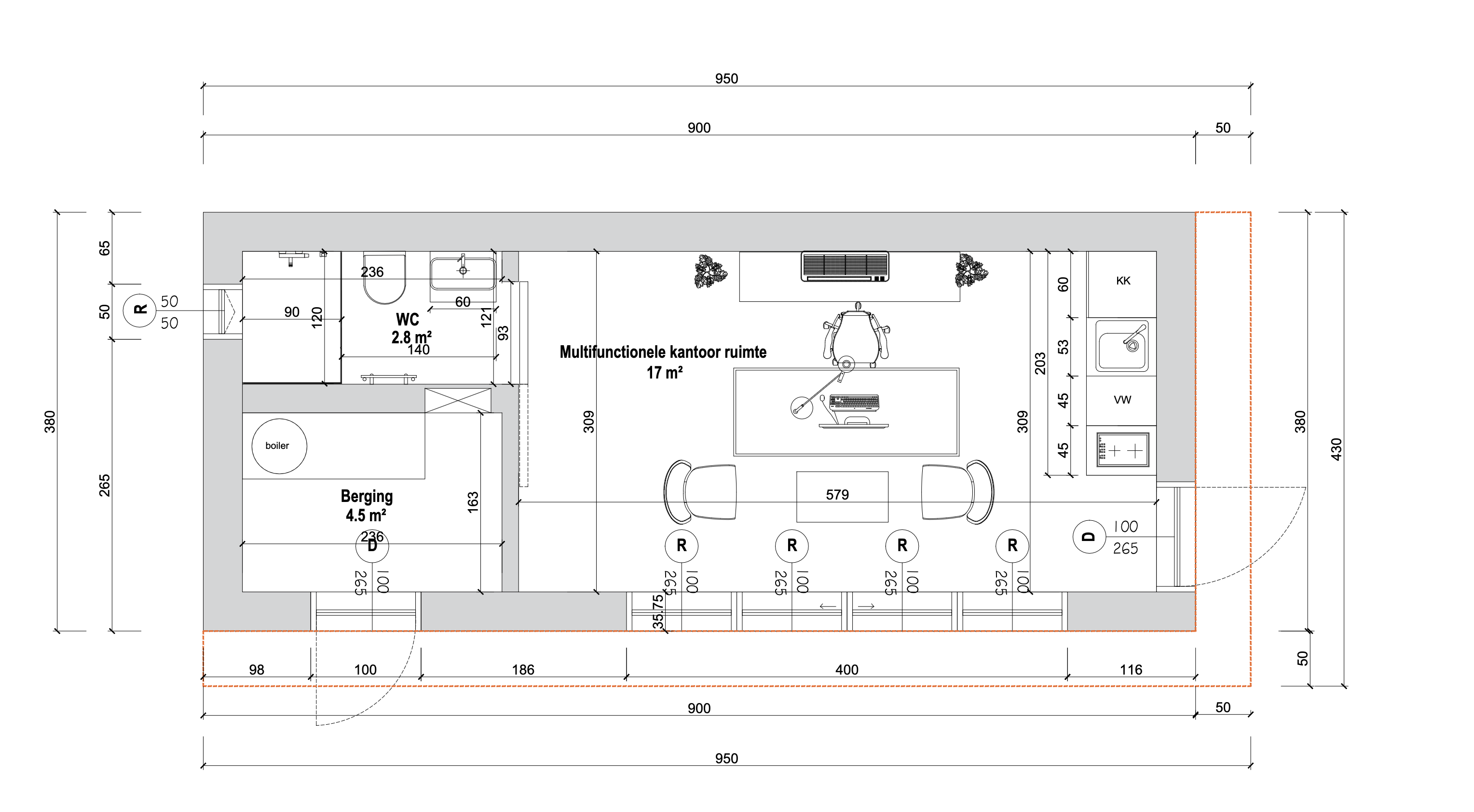
Slimme indeling

Het tuinkantoor is praktisch ingedeeld voor dagelijks gebruik en optimaal comfort.

Multifunctionele kantoorruimte

Ruime werkplek met veel daglicht en ruimte voor werken en overleg.

Badkamer

Modern sanitair met toilet en wastafel.

Berging

Opslagruimte met technische installaties. 

Kitchenette

Compacte keuken voor extra gemak tijdens lange werkdagen.

Prefab productie en snelle plaatsing

Het tuinkantoor is geproduceerd in onze fabriek in Weert en vervolgens snel op locatie geplaatst. Dankzij prefab bouwen werd het project efficiënt gerealiseerd met minimale overlast.

 

Waarom kiezen voor Kaynad

Snelle plaatsing

Voorbereid in de fabriek en snel gemonteerd.

Volledig op maat

Afgestemd op uw wensen en tuin.

Duurzaam & energiezuinig

Hoogwaardige isolatie en duurzame materialen.

Comfort het hele jaar

Geschikt voor alle seizoenen dankzij ventilatie en isolatie.

Uw eigen tuinkantoor realiseren

Een prefab tuinkantoor biedt rust, comfort en extra ruimte zonder ingrijpende verbouwing aan uw woning. Ideaal als kantoor, studio of multifunctionele ruimte en volledig afgestemd op uw wensen en tuin.

Geïnspireerd door dit project? Stel eenvoudig uw eigen tuinkantoor samen met de configurator en ontdek direct wat mogelijk is voor uw situatie. Onze specialisten denken daarnaast graag met u mee en helpen u met persoonlijk advies op maat.

Zelf samenstellen met de configurator

Bent u geïnspireerd door dit project in Roermond? Stel eenvoudig uw eigen tuinkantoor samen en ontdek direct wat mogelijk is voor uw situatie.

 

Meer ruimte nodig aan uw woning?

Bekijk ook onze prefab aanbouw oplossingen en ontdek hoe u uw woonruimte snel en efficiënt kunt uitbreiden.

Persoonlijk advies

Onze specialisten denken graag met u mee en helpen u bij het vinden van de beste oplossing voor uw tuin of woning.

Stel je vraag
Vul het formulier in voor informatie, prijzen of een persoonlijk gesprek.
Please enable JavaScript in your browser to complete this form.
name