35 m² Prefab Tuinkantoor – Ruimtelijk en Direct Gebruiksklaar

Stijlvol en comfortabel werken in je eigen tuin

Het prefab tuinkantoor van Kaynad biedt een slimme indeling, hoogwaardige isolatie en een moderne uitstraling. Ideaal als werkruimte, studio of praktijk aan huis.

Waarom kiezen voor dit tuinkantoor

✔ Volledig geïsoleerd en energiezuinig
✔ Turnkey geleverd en snel geplaatst
✔ Hoogwaardige materialen
✔ Volledig naar wens samen te stellen

Stel jouw tuinkantoor samen

Ontwerp eenvoudig jouw ideale tuinkantoor met onze configurator en ontvang direct een vrijblijvende offerte.

35 m² Prefab Tuinkantoor – Ruimtelijk en Direct Gebruiksklaar

Turnkey geleverd met houten gevel

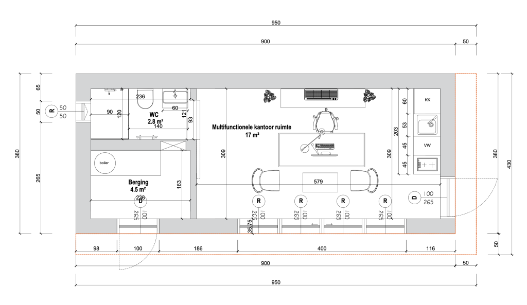
Ben je op zoek naar een hoogwaardige en ruime werkplek in je tuin? Het 35 m² prefab tuinkantoor van Kaynad combineert slimme indeling met een warme, natuurlijke uitstraling dankzij de houten gevelafwerking. Deze modulaire unit is volledig geïsoleerd, duurzaam geproduceerd en binnen één dag sleutelklaar geplaatst. Het model biedt een royale leefruimte met keukenoptie, een afgesloten werkkamer, een complete badkamer met douche en toilet, en een aparte technische ruimte. Dit maakt het tuinkantoor uitermate geschikt voor dagelijks gebruik, zonder concessies te doen aan comfort of functionaliteit.

De houten gevel geeft het tuinkantoor een elegante en tijdloze uitstraling, passend in vrijwel elke tuinomgeving. Alle units worden vervaardigd in onze eigen fabriek in Weert, waarbij gebruik wordt gemaakt van hoogwaardige, recyclebare materialen. Dankzij de dampremmende bouwlagen, sterke vloeropbouw en energiezuinige isolatie voldoet het model aan de strenge BENG-normen en is het geschikt voor elk seizoen.

Het prefab productieproces maakt een snelle levering mogelijk: binnen 2 tot 8 weken kan jouw tuinkantoor gebruiksklaar opgeleverd worden. De plaatsing op locatie gebeurt zonder bouwstress of langdurige overlast – gewoon turnkey binnen één dag.

Een idee voor een woning, maar nog vragen?
Of je nu droomt van een compacte woning, een ruime gezinswoning of een stijlvolle mantelzorgwoning — bij Kaynad staan we klaar om je te helpen. Vraag vrijblijvend informatie aan of plan een gesprek met ons in. Samen brengen we jouw woonwensen tot leven.
Please enable JavaScript in your browser to complete this form.
name

De fundering is inbegrepen. Transportkosten kunnen variëren afhankelijk van de locatie van het perceel. Ook de funderingswerkzaamheden kunnen verschillen op basis van de bodem en bereikbaarheid.

🔍 Vermeld de locatie van je perceel bij het invullen van het formulier. Zo ontvang je van ons een geheel vrijblijvende en nauwkeurige offerte – zonder verrassingen achteraf.