Prefab Tuinkantoor Boxtel

Modern tuinkantoor op maat

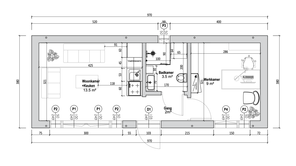
In Boxtel realiseerden wij een volledig geïsoleerd prefab tuinkantoor van circa 38 m². Een comfortabele werkplek met veel licht en een slimme indeling.

Prefab Tuinkantoor in Boxtel – Comfortabel werken in eigen tuin

Project Boxtel: een modern en volledig geïsoleerd tuinkantoor

Voor deze klant in Boxtel realiseerden wij een prefab tuinkantoor van circa 38 m² dat volledig is afgestemd op comfortabel thuiswerken. Het doel was een rustige en functionele werkplek creëren met veel daglicht en een sterke verbinding met de tuin.

Dankzij hoogwaardige isolatie en een slimme indeling is een comfortabele ruimte ontstaan die het hele jaar door te gebruiken is.

Indeling en functionaliteit

Het tuinkantoor is ontworpen met een praktische indeling die geschikt is voor dagelijks gebruik en maximale flexibiliteit biedt.

Multifunctionele werkruimte

Een lichte en ruime werkplek met directe toegang tot de tuin en voldoende ruimte voor werk en ontspanning.

Comfort en isolatie

Volledig geïsoleerd en voorzien van ventilatie voor een aangenaam binnenklimaat in elk seizoen.

Slim ontwerp

Compact maar efficiënt ingedeeld voor optimaal gebruik van de beschikbare ruimte.

Snelle prefab productie en plaatsing

Het tuinkantoor is volledig geproduceerd in onze fabriek in Weert en binnen korte tijd op locatie geplaatst. Dankzij prefab bouwmethodes verliep het traject snel en efficiënt met minimale overlast.

Binnen één dag werd het kantoor geplaatst en gebruiksklaar opgeleverd.

 

Slim ingedeeld en comfortabel

✔ Multifunctionele werkruimte
✔ Volledig geïsoleerd
✔ Veel daglicht
✔ Direct toegang tot de tuin

Snel gebouwd met prefab

Geproduceerd in onze fabriek en binnen korte tijd geplaatst met minimale overlast.

 

Waarom Kaynad

Maatwerk ontwerp

Snelle plaatsing

Duurzame materialen

Comfort het hele jaar

Waarom kiezen voor een prefab tuinkantoor van Kaynad

Volledig maatwerk

Indeling, afmetingen en afwerking afgestemd op uw wensen.

Snelle realisatie

Productie in eigen fabriek en snelle montage op locatie.

 

Duurzaam en energiezuinig

Gebouwd volgens BENG-normen met hoogwaardige materialen.

 

Comfort het hele jaar

Optimale isolatie en ventilatie voor een prettig binnenklimaat.