Prefab Aanbouw in Kerkrade

Meer ruimte met prefab comfort

Onlangs realiseerden wij deze hoogwaardige prefab aanbouw in Kerkrade. De uitbreiding werd in onze fabriek geproduceerd en daarna snel op locatie geplaatst.

De woning kreeg een lichte, moderne leefruimte met een strakke afwerking en een indeling die perfect aansluit op het bestaande huis.

Van wens naar realisatie

Van eerste ontwerp tot oplevering begeleiden wij elke stap. Denk aan: ontwerp, vergunningscheck, fundering en turnkey afwerking. Zo blijft het proces overzichtelijk en efficiënt.

Duurzaam en efficiënt gebouwd

Prefab bouwen betekent: minder overlast, snelle montage en een constante kwaliteit. Met duurzame materialen en goede isolatiewaarden is de aanbouw klaar voor jarenlang comfort.

Wat maakt deze aanbouw bijzonder?

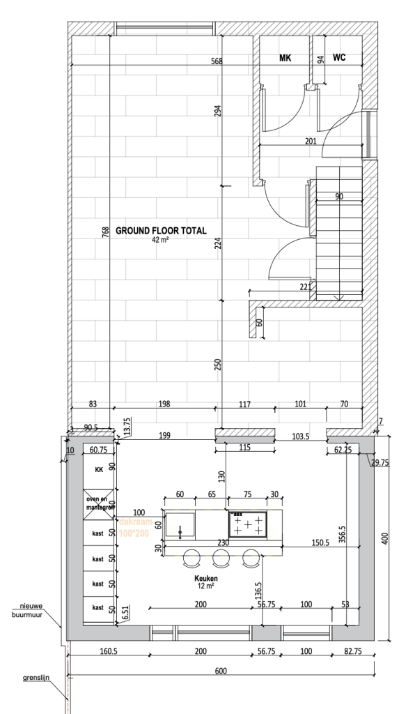
  • Totale oppervlakte: circa 42 m²

  • Moderne leefkeuken met kookeiland

  • Aparte toiletruimte + technische aansluitingen

  • Naadloze aansluiting op de bestaande woning

  • Prefab geproduceerd en snel geplaatst

  • Gebouwd in onze fabriek in Weert

Waarom kiezen voor Kaynad?

Snelle realisatie

Grotendeels geproduceerd in de fabriek, snel gemonteerd op locatie.

Volledig op maat

Formaat, indeling en afwerking afgestemd op uw woning.

Duurzaam & energiezuinig

Hoogwaardige materialen en sterke isolatie voor extra comfort.

Ontwerp uw eigen prefab aanbouw

Wilt u ook extra leefruimte zonder verhuizen? Stel uw aanbouw online samen en ontdek direct wat bij uw woning past.

Prefab Aanbouw in Kerkrade – Slimme en Moderne Uitbreiding

Project in Kerkrade: meer ruimte met prefab comfort

Onlangs realiseerden wij deze hoogwaardige prefab aanbouw in Kerkrade. In slechts twee weken werd de volledige uitbreiding in onze fabriek geproduceerd en vervolgens op locatie geplaatst.

Dankzij het strakke ontwerp, het moderne kookeiland en de hoogwaardige afwerking met een glad gestucte gevel is een lichte en comfortabele leefruimte ontstaan die perfect aansluit op de bestaande woning.

Het resultaat is een stijlvolle uitbreiding die direct klaar is voor gebruik en jarenlang wooncomfort biedt.

Van fundering tot oplevering: een compleet traject

Wij begeleiden onze klanten in elke stap van het proces. Van het eerste ontwerp en vergunningstraject tot de fundering en turnkey oplevering — alles wordt zorgvuldig gepland en uitgevoerd.

Ons conceptontwerp helpt bij de vergunningscheck bij de gemeente en zorgt ervoor dat het project efficiënt en zonder verrassingen wordt gerealiseerd.

Zorgeloos bouwen met prefab comfort

Prefab bouwen betekent minder bouwtijd, minder overlast en een hogere bouwkwaliteit. Door de voorbereiding in de fabriek kunnen wij snel en efficiënt werken met een voorspelbaar resultaat.

Duurzaam en efficiënt geproduceerd

Dankzij onze prefab technieken en het gebruik van hoogwaardige en recyclebare materialen beperken wij bouwafval en realiseren wij energiezuinige uitbreidingen die klaar zijn voor de toekomst.

Wat maakt deze prefab aanbouw bijzonder?

Deze uitbreiding is ontworpen met een sterke focus op functionaliteit, comfort en moderne uitstraling.

  • Totale oppervlakte van circa 42 m²

  • Moderne leefkeuken met kookeiland

  • Aparte toiletruimte en technische aansluitingen

  • Naadloze aansluiting op de bestaande woning

  • Binnen korte tijd geproduceerd en geplaatst

  • Volledig prefab gebouwd in onze fabriek in Weert

Waarom kiezen voor een prefab aanbouw van Kaynad

Deze uitbreiding is ontworpen met een sterke focus op functionaliteit, comfort en moderne uitstraling.

  • Totale oppervlakte van circa 42 m²

  • Moderne leefkeuken met kookeiland

  • Aparte toiletruimte en technische aansluitingen

  • Naadloze aansluiting op de bestaande woning

  • Binnen korte tijd geproduceerd en geplaatst

  • Volledig prefab gebouwd in onze fabriek in Weert

Snelle realisatie

De meeste werkzaamheden worden in de fabriek uitgevoerd waardoor de plaatsing op locatie snel verloopt.

Volledig op maat ontworpen

Elke aanbouw wordt afgestemd op de woning, wensen en leefstijl van de klant.

Duurzaam en energiezuinig

Wij bouwen met hoogwaardige materialen en sterke isolatiewaarden volgens moderne bouwstandaarden.

Extra leefruimte zonder verhuizen

Een prefab aanbouw is dé oplossing voor wie meer ruimte wil zonder te verhuizen. Of het nu gaat om een grotere keuken, extra woonkamer of werkruimte, een uitbreiding verhoogt het wooncomfort en de woningwaarde.

 

Uw eigen prefab aanbouw ontwerpen

Bent u geïnspireerd door dit project in Kerkrade? Met de configurator van Kaynad stelt u eenvoudig uw eigen aanbouw samen en ontdekt u direct de mogelijkheden voor uw woning.