Aanbouw Helden 35 m²

Meer ruimte. Meer licht. Meer comfort.

Voor deze woning in Helden realiseerden wij een moderne prefab keukenaanbouw van 35 m² die perfect aansluit op de bestaande woning.

Van ontwerp tot plaatsing — snel, efficiënt en volledig ontzorgd.

Het project

Van wens naar realiteit

De bewoners wilden een ruimere leefkeuken met meer licht en een directe verbinding met de tuin.

Samen ontwierpen we een praktische en stijlvolle uitbreiding die volledig aansluit bij hun woonwensen.

Aanbouw Helden 35 m² — Moderne prefab keukenuitbreiding

Een aanbouw is meer dan extra vierkante meters — het is meer licht, meer ruimte en meer wooncomfort.
Voor deze woning in Helden realiseerden wij een moderne prefab keukenaanbouw van 35 m² die perfect aansluit op de bestaande woning en de wensen van de bewoners.

Van ontwerp tot plaatsing: snel, efficiënt en volledig ontzorgd.

Het project in Helden

De bewoners wilden een ruimere en lichtere leefkeuken waar koken en samenkomen centraal staan. Samen hebben we een ontwerp gemaakt dat niet alleen esthetisch sterk is, maar ook praktisch en toekomstbestendig.

De nieuwe aanbouw creëert een open en ruimtelijk gevoel met een directe verbinding naar de tuin en een optimale indeling van keuken en bijkeuken.

Slimme indeling en optimaal gebruik van ruimte

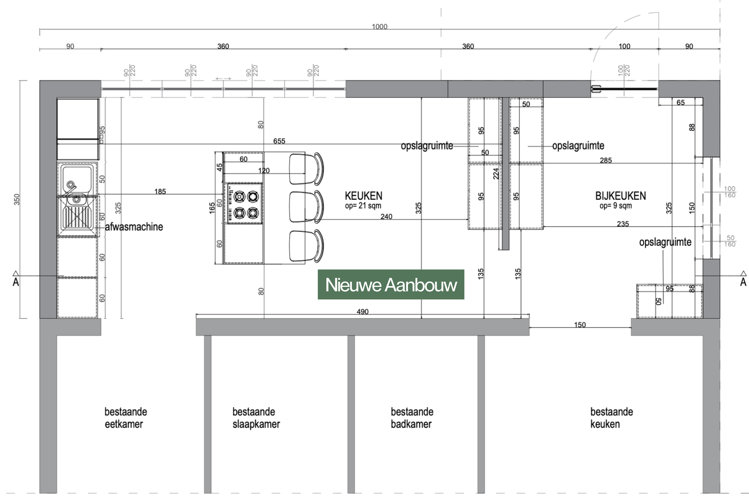
De aanbouw van 35 m² bestaat uit:

  • Ruime leefkeuken met kookeiland

  • Praktische bijkeuken met extra opslagruimte

  • Grote raampartijen voor maximaal daglicht

  • Directe toegang tot het terras

  • Moderne en strakke afwerking

Waarom kiezen voor prefab aanbouw van Kaynad

Snelle realisatie zonder lange wachttijden

Deze aanbouw is volledig prefab geproduceerd in onze fabriek in Weert onder gecontroleerde omstandigheden. Dit garandeert hoge kwaliteit, minimale overlast en een snelle plaatsing op locatie.

Binnen één dag stond de structuur volledig op zijn plek.

Kwaliteit en duurzaamheid

Bij Kaynad bouwen we volgens de hoogste normen met duurzame materialen en energiezuinige oplossingen. Onze aanbouwen sluiten naadloos aan op bestaande woningen en voldoen aan alle geldende bouwregelgeving.

Volledig ontzorgd traject

Van vergunning en ontwerp tot productie en plaatsing — wij begeleiden het volledige proces. Zo weet je precies waar je aan toe bent zonder verrassingen.

Slimme indeling

✔ Ruime leefkeuken met kookeiland
✔ Praktische bijkeuken
✔ Grote raampartijen
✔ Directe toegang tot terras
✔ Moderne afwerking

Waarom prefab van Kaynad

Snelle plaatsing

De aanbouw is volledig geproduceerd in onze fabriek in Weert.Binnen één dag stond de structuur op locatie.

Hoogwaardige kwaliteit

Gebouwd met duurzame materialen en volgens alle geldende bouwregels.

Volledig ontzorgd

Wij begeleiden het volledige traject van ontwerp tot plaatsing.

Van fabriek naar woning

Na productie is de aanbouw naar Helden vervoerd en op de fundering geplaatst.
Snel, efficiënt en zonder lange wachttijden.

Stel jouw aanbouw samen

Elke woning is uniek. Daarom kun je jouw aanbouw volledig op maat samenstellen.

 

Ontdek direct wat er mogelijk is met onze configurator.

Prefab aanbouw: van fabriek naar jouw woning

Na de voorbereidende fase werd de aanbouw in onze fabriek geproduceerd. Vervolgens is deze naar Helden vervoerd en op de fundering geplaatst.

Dankzij deze efficiënte werkwijze kon de woning binnen korte tijd worden uitgebreid zonder langdurige bouwoverlast.

Is een aanbouw geschikt voor jouw woning?

Elke woning en situatie is uniek. Daarom kun je bij Kaynad jouw aanbouw volledig op maat samenstellen — van afmetingen en gevelafwerking tot indeling en opties.