Prefab Zadeldakwoning 87 m² – Duurzaam & Modern Wonen

€ 261.000 excl. BTW /€ 315.810 incl. BTW

Bent u op zoek naar een compacte, maar complete woning? Onze 87 m² prefab zadeldakwoning combineert comfort, functionaliteit en een stijlvol design met de hoogste duurzaamheid.

 

Woningindeling

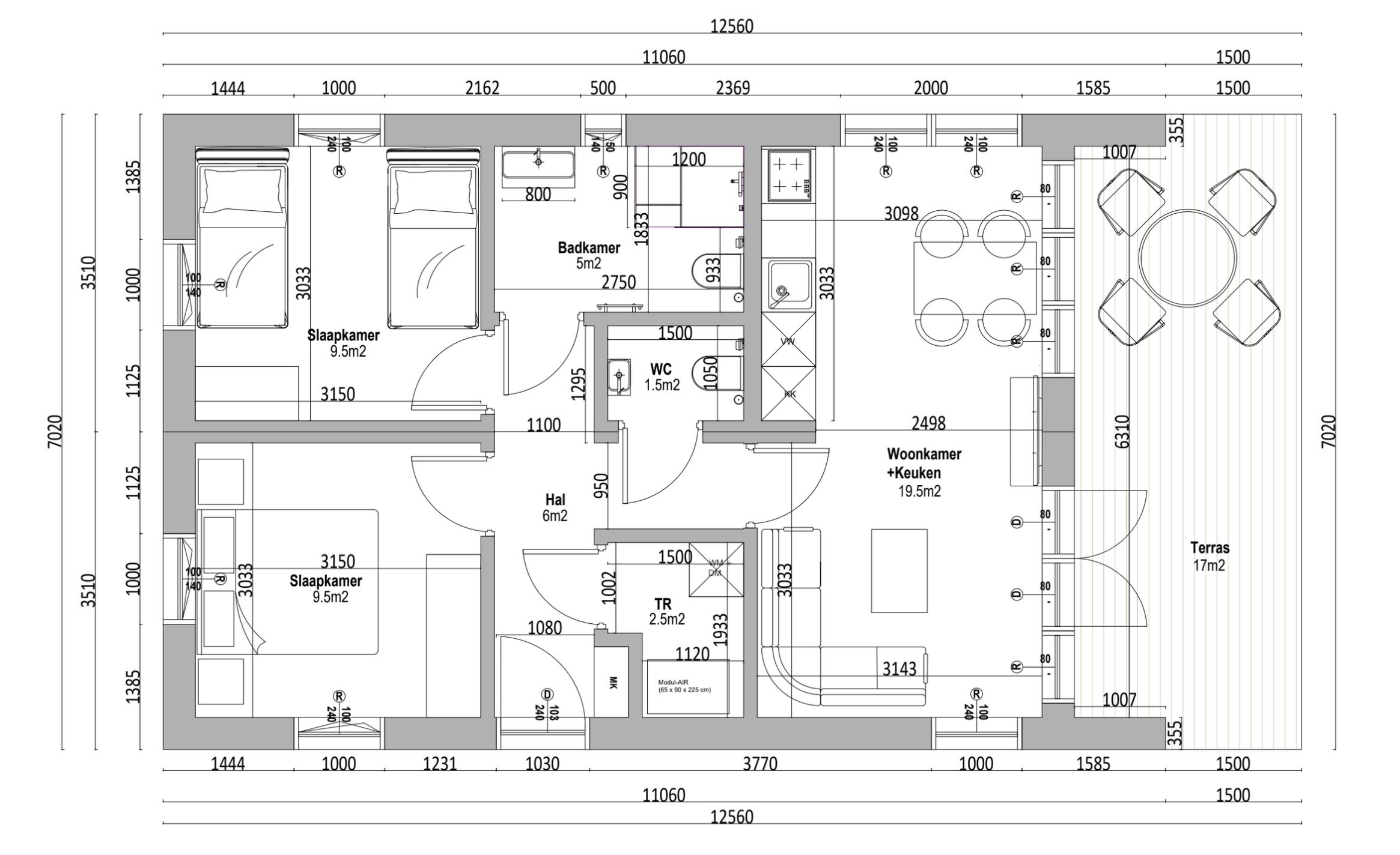
Deze woning beschikt over:

  • Woonkamer + keuken: 19,5 m² – open leefruimte met veel lichtinval

  • 2 slaapkamers: elk 9,5 m² – ideaal voor gezin of gasten

  • Badkamer: 5 m² – compleet en praktisch

  • Apart toilet: 1,5 m²

  • Technische ruimte (TR): 2,5 m²

  • Hal: 6 m²

  • Terras: 17 m² – genieten van het buitenleven

H2: Duurzaam gebouwd met houtskeletbouw

  • Gemaakt met een houtskeletbouw constructie (Kerto LVL-frame), wat zorgt voor een stevige, veilige en energie-efficiënte structuur.

  • Volledig geproduceerd met duurzame en recyclebare materialen.

  • Voldoet aan de strenge BENG-normen en biedt hoge isolatiewaarden (vloer 3,7 – wanden 4,7 – dak 6,3).

 

Een idee voor een woning, maar nog vragen?
Of je nu droomt van een compacte woning, een ruime gezinswoning of een stijlvolle mantelzorgwoning — bij Kaynad staan we klaar om je te helpen. Vraag vrijblijvend informatie aan of plan een gesprek met ons in. Samen brengen we jouw woonwensen tot leven.
Please enable JavaScript in your browser to complete this form.
name

Let op: Fundering en transport zijn afhankelijk van uw perceel en niet inbegrepen in de standaardprijs.

Uw interieur, uw keuze

Het interieur is volledig personaliseerbaar: vloerafwerking, keukenontwerp, badkamerstijl en gevelafwerking kunnen naar wens worden aangepast. Zo creëert u een woning die perfect aansluit bij uw smaak en levensstijl.

 

Perfect als mantelzorgwoning of gezinswoning

Deze woning kan dienen als mantelzorgwoning, starterswoning of vakantiehuis, dankzij de slimme en flexibele indeling.

 

Vraag nu een vrijblijvende offerte aan

Wilt u meer weten of een persoonlijke prijsopgave ontvangen? Vul het formulier in en ons team neemt direct contact met u op.

 

Stel je vraag
Vul het formulier in voor informatie, prijzen of een persoonlijk gesprek.
Please enable JavaScript in your browser to complete this form.
name