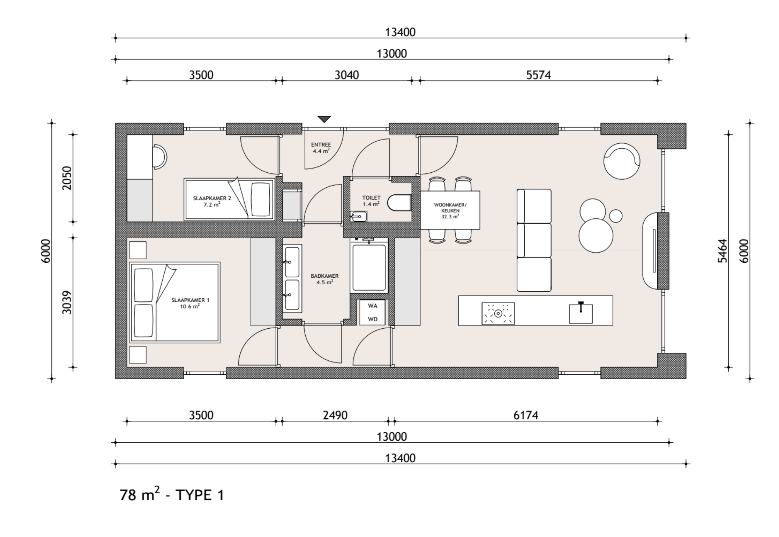
78 m² Mantelzorgwoning

Ruim • Slim • Gelijkvloers

Moderne prefab mantelzorgwoning met 2 slaapkamers, open keuken en comfortabele indeling voor zelfstandig wonen.

Waarom dit model

✔ Volledig gelijkvloers
✔ 2 slaapkamers
✔ Ruime woonkamer + keuken
✔ Ideaal voor mantelzorg & senioren

Inclusief in de Standaardprijs

Complete badkamer (douche, toilet, wastafel)

Kunststof kozijnen + HR++ glas

Draaikiepramen & binnendeuren

Elektrische installatie + waterleidingen

Infrarood/plafondverwarmingspanelen

Witte pleistergevel

Prefab productie in Weert

Levering in 4–12 weken

Sleutelklaar geplaatst in 1 dag

Niet inbegrepen

Deze onderdelen zijn niet inbegrepen, maar kunnen op verzoek door Kaynad Prefab Modulair Bouw B.V. worden uitgevoerd:

 

PVC-vloer

Vloerplinten

Keukenblok / keukenopstelling

Vergunning & gemeentelijke voorwaarden

Fundering + grondwerk

Transport & hijswerk

Buitenriolering

Schilderwerk

Terras, luifel of overkapping

Prefab geproduceerd in Weert

Deze woning wordt volledig in onze fabriek gebouwd.

Levertijd: 4–12 weken
Plaatsing: in 1 dag op locatie

Geen bouwstress, geen vertragingen.

Offerte of bezoek

Wilt u weten of deze woning op uw perceel past?

 

Stel je vraag
Vul het formulier in voor informatie, prijzen of een persoonlijk gesprek.
Please enable JavaScript in your browser to complete this form.
name

78 m² Mantelzorgwoning – Ruim, Slim & Volledig Gelijkvloers

Een moderne prefab mantelzorgwoning met twee slaapkamers, een royale woonkamer met open keuken en een praktische indeling voor comfortabel en zelfstandig wonen.

Slim ontworpen voor comfortabel samenleven

Deze 78 m² mantelzorgwoning is ontworpen voor bewoners die ruimte, privacy en comfort willen combineren.
De woning beschikt over een royale woonkamer met open keuken, twee volwaardige slaapkamers en een centrale sanitaire zone.

Dankzij de doordachte indeling ontstaat een natuurlijke scheiding tussen het leefgedeelte en de slaapvertrekken – ideaal voor rust, zorg en dagelijks comfort.

Inclusief in de Standaardprijs

  • Kunststof kozijnen met HR++ glas
  • Binnen- en buitendeuren
  • Plafondverwarmingspanelen
  • Elektrische installatie & waterleidingen
  • Mechanische ventilatie
  • Volledig afgewerkte badkamer en toilet
  • Prefab productie in Weert

Niet inbegrepen in de standaardprijs

  • Vergunning en gemeentelijke eisen
  • Fundering en grondwerk
  • Transport en plaatsing
  • Keuken
  • PVC vloer en plinten
  • Schilderwerk
  • Buitenriolering
  • Terras of luifel
Een idee voor een woning, maar nog vragen?
Of je nu droomt van een compacte woning, een ruime gezinswoning of een stijlvolle mantelzorgwoning — bij Kaynad staan we klaar om je te helpen. Vraag vrijblijvend informatie aan of plan een gesprek met ons in. Samen brengen we jouw woonwensen tot leven.
Please enable JavaScript in your browser to complete this form.
name

Waarom dit model perfect is voor mantelzorg

  • Volledig gelijkvloers en drempelvrij

  • Twee slaapkamers voor bewoner en partner of zorgverlener

  • Ruime woonkamer met veel daglicht

  • Logische scheiding tussen wonen en slapen

  • Geschikt voor langdurig zelfstandig wonen

Prefab gebouwd in onze fabriek in Weert

Deze mantelzorgwoning wordt volledig prefab geproduceerd in onze eigen fabriek.
Dat betekent:

  • Constante kwaliteit

  • Snelle bouwtijd

  • Geen verrassingen op locatie

Levertijd: 4–12 weken
Plaatsing: in 1 dag op locatie

Ook aanpasbaar aan uw wensen

Wilt u:

  • Een andere gevel (hout / steenstrip / stuc)?

  • Extra kasten?

  • Een andere badkamerindeling?

  • Andere keukenopstelling?

Deze 78 m² mantelzorgwoning is volledig aanpasbaar.

Vraag nu uw offerte aan

Deze 78 m² mantelzorgwoning combineert ruimte, comfort en zorgvriendelijk wonen in één slimme prefab oplossing..

Stel je vraag
Vul het formulier in voor informatie, prijzen of een persoonlijk gesprek.
Please enable JavaScript in your browser to complete this form.
name