70 m² Mantelzorgwoning

Ruim, warm & natuur-inclusief wonen

Afmetingen: 14 m × 5 m × ca. 3 m hoog

De 70 m² mantelzorgwoning van Kaynad is ontworpen voor comfortabel, zelfstandig en zorgeloos wonen. Dankzij het zadeldak en de slimme indelingen voelt de woning ruim, licht en prettig aan.

Comfort & leefkwaliteit

Deze prefab mantelzorgwoning biedt alles voor dagelijks gemak en rust:

  • Ruime woonkamer met open keuken

  • Volwaardige slaapkamer(s)

  • Complete badkamer + toilet (indelingsafhankelijk)

  • Veel daglicht & logische looproutes

  • Gelijkvloers en overzichtelijk

Prefab geproduceerd in Weert en sleutelklaar geplaatst.

Gevelopties

Kies de uitstraling die bij u past:

  • Kunststof

  • Composiet

  • Hout

  • Steenstrip

  • Metselwerk look

  • Pleisterwerk (wit/strak)

In de configurator ziet u direct het effect op uitstraling en offerte.

Inclusief in de Standaardprijs

Complete badkamer (douche, toilet, wastafel)

Kunststof kozijnen + HR++ glas

Draaikiepramen & binnendeuren

Elektrische installatie + waterleidingen

Infrarood/plafondverwarmingspanelen

Witte pleistergevel

Prefab productie in Weert

Levering in 4–12 weken

Sleutelklaar geplaatst in 1 dag

Niet inbegrepen

Deze onderdelen zijn niet inbegrepen, maar kunnen op verzoek door Kaynad Prefab Modulair Bouw B.V. worden uitgevoerd:

 

PVC-vloer

Vloerplinten

Keukenblok / keukenopstelling

Vergunning & gemeentelijke voorwaarden

Fundering + grondwerk

Transport & hijswerk

Buitenriolering

Schilderwerk

Terras, luifel of overkapping

Kies uw indeling

70 m² Mantelzorgwoning | Ruim, Warm & Natuur-inclusief

Afmetingen: 14 m lang × 5 m breed × ca. 3 m hoog

Wilt u een mantelzorgwoning die écht prettig aanvoelt: ruim, licht en logisch ingedeeld?

De 70 m² mantelzorgwoning van Kaynad combineert een warm woongevoel met praktische woonkwaliteit. Dankzij het zadeldak en het natuur-inclusieve concept past dit model perfect op een rustige kavel, in een groene omgeving of achter op het erf.

Comfortabel wonen met een slimme indeling

Deze prefab mantelzorgwoning is gemaakt voor dagelijks gemak, rust en privacy:

  • Ruime woonkamer met open keuken

  • Volwaardige slaapkamer(s) met rustige ligging

  • Complete badkamer + toilet (afhankelijk van indeling: apart mogelijk)

  • Veel daglicht en logische looproutes

  • Praktische entree en opbergruimte-opties

Prefab geproduceerd in Weert en sleutelklaar geplaatst – snel, strak en betrouwbaar.

Gevelopties: kies de uitstraling die bij u past

De 70 m² mantelzorgwoning stemt u volledig af op uw eigen stijl en omgeving. Kies uit kunststof, composiet of houten gevelbekleding, steenstrip, metselwerk look of strak wit pleisterwerk. In de configurator ziet u direct hoe elke keuze de uitstraling van de woning én uw offerte beïnvloedt.

Inclusief in de Standaardprijs

  • Plafondverwarmingspanelen (3 stuks )

  • Elektrische installatie & waterleidingen

  • Binnen- & buitendeuren (wit)

  • Witte kunststof kozijnen + HR++ glas

  • Volledig afgewerkte badkamer & toilet

  • Witte pleistergevel

  • Prefab productie in Weert

  • Levering in 4–12 weken

  • Sleutelklaar geplaatst in 1 dag

Niet inbegrepen in de standaardprijs

  • Vergunning & gemeentelijke voorwaarden
  • Fundering + grondwerk
  • Transport & plaatsing
  • PVC-vloer + plinten
  • Keuken
  • Schilderwerk
  • Buitenriolering
  • Terras, luifel of overkapping

Op verzoek kan Kaynad alle onderdelen verzorgen voor een volledig sleutelklaar project.

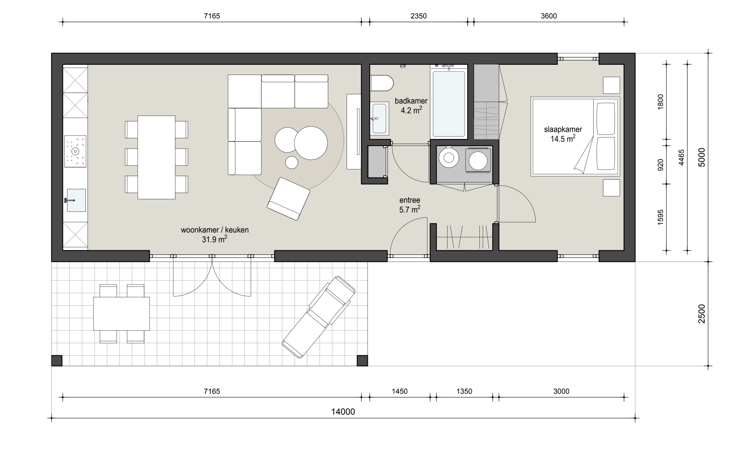
Model 1 – Open leefruimte met rustige slaapkamer

Model 1 is ontworpen voor comfortabel en overzichtelijk wonen. De indeling biedt een royale leefruimte aan de tuinzijde en een duidelijke scheiding tussen wonen en slapen. Dankzij de logische plattegrond voelt de woning ruim en rustig aan.

De open woonkamer met keuken vormt het hart van de woning en biedt voldoende ruimte voor een zithoek en eettafel. Grote raampartijen zorgen voor veel daglicht en een sterke verbinding met buiten.

De slaapkamer van 14,5 m² ligt aan de rustige zijde van de woning. De badkamer is praktisch geplaatst nabij de slaapkamer en entree, wat zorgt voor dagelijks gemak en privacy.

Personaliseer Model 1 in de configurator en ontvang direct een vrijblijvende offerte.

Model 2 | Gescheiden toilet en extra comfort

Model 2 is ideaal voor wie extra comfort en functionaliteit belangrijk vindt. Deze indeling biedt een ruime leefruimte aan de tuinzijde en onderscheidt zich door een apart toilet, wat zorgt voor extra gebruiksgemak en privacy.

De open woonkamer met keuken van ca. 31,5 m² vormt het centrale leefgedeelte en biedt voldoende ruimte voor een comfortabele zithoek en eettafel. Dankzij de brede raampartijen is er veel daglicht en een prettige verbinding met buiten.

De slaapkamer van 13,4 m² ligt aan de rustige zijde van de woning. De badkamer van 5,0 m² is praktisch gesitueerd nabij de slaapkamer, terwijl het separate toilet toegankelijk is vanuit de entree. Deze indeling maakt Model 2 bijzonder geschikt voor dagelijks comfortabel en zelfstandig wonen.

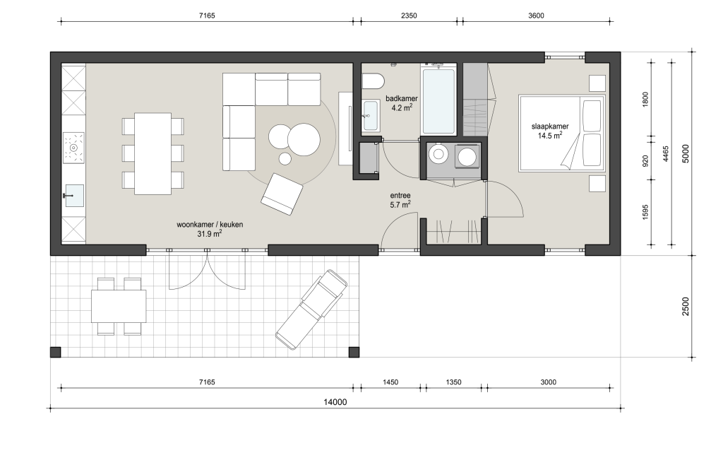
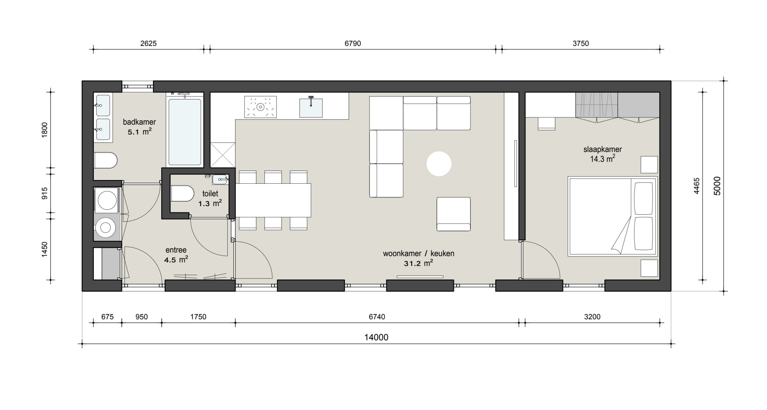
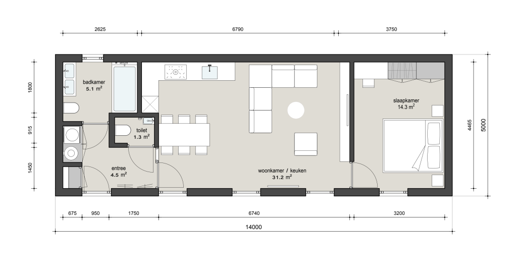
Model 3 | Centrale entree met maximaal leefcomfort

Model 3 is ontworpen voor wie houdt van een open leefruimte met een duidelijke en compacte entreezone. Dankzij de centrale positionering van de entree zijn alle functies logisch gegroepeerd en voelt de woning overzichtelijk en efficiënt aan.

De woonkamer met open keuken van ca. 31,2 m² vormt het hart van de woning. De keuken ligt centraal in de ruimte en biedt voldoende werk- en zitruimte. Grote raampartijen zorgen voor veel daglicht en een prettige verbinding met buiten.

Aan de rustige zijde van de woning bevindt zich de ruime slaapkamer van 14,3 m². De badkamer van 5,1 m² en het aparte toilet zijn praktisch gescheiden en direct bereikbaar vanuit de entree, wat zorgt voor extra comfort en dagelijks gemak.

Model 4 | Open leefruimte met centrale keuken

Model 4 biedt een open en rustige woonbeleving met een centraal geplaatste keuken. Wonen, koken en eten lopen vloeiend in elkaar over, wat zorgt voor een ruimtelijk en comfortabel gevoel.

De woonkamer met open keuken van ca. 31,2 m² is licht en overzichtelijk dankzij de brede opzet en grote raampartijen. De slaapkamer van 14,3 m² ligt aan de rustige zijde van de woning. Badkamer en apart toilet zijn praktisch gepositioneerd bij de entree voor extra gemak en privacy.

Model 4 is ideaal voor gelijkvloers, zelfstandig wonen met een open en moderne indeling.

Model 4 – Extra ruime badkamer & royale slaapkamer

Deze indeling van de mantelzorgwoning van 58 m² combineert comfort met functionaliteit.
De ruime woonkamer met open keuken (24,8 m²) vormt het hart van de woning en biedt veel daglicht en bewegingsvrijheid.

Het separate toilet en de badkamer zorgen voor extra gemak en privacy, terwijl de slaapkamer van 11,1 m² rust en comfort biedt.
Deze indeling is ideaal voor zelfstandig wonen met een duidelijke scheiding tussen wonen en slapen.

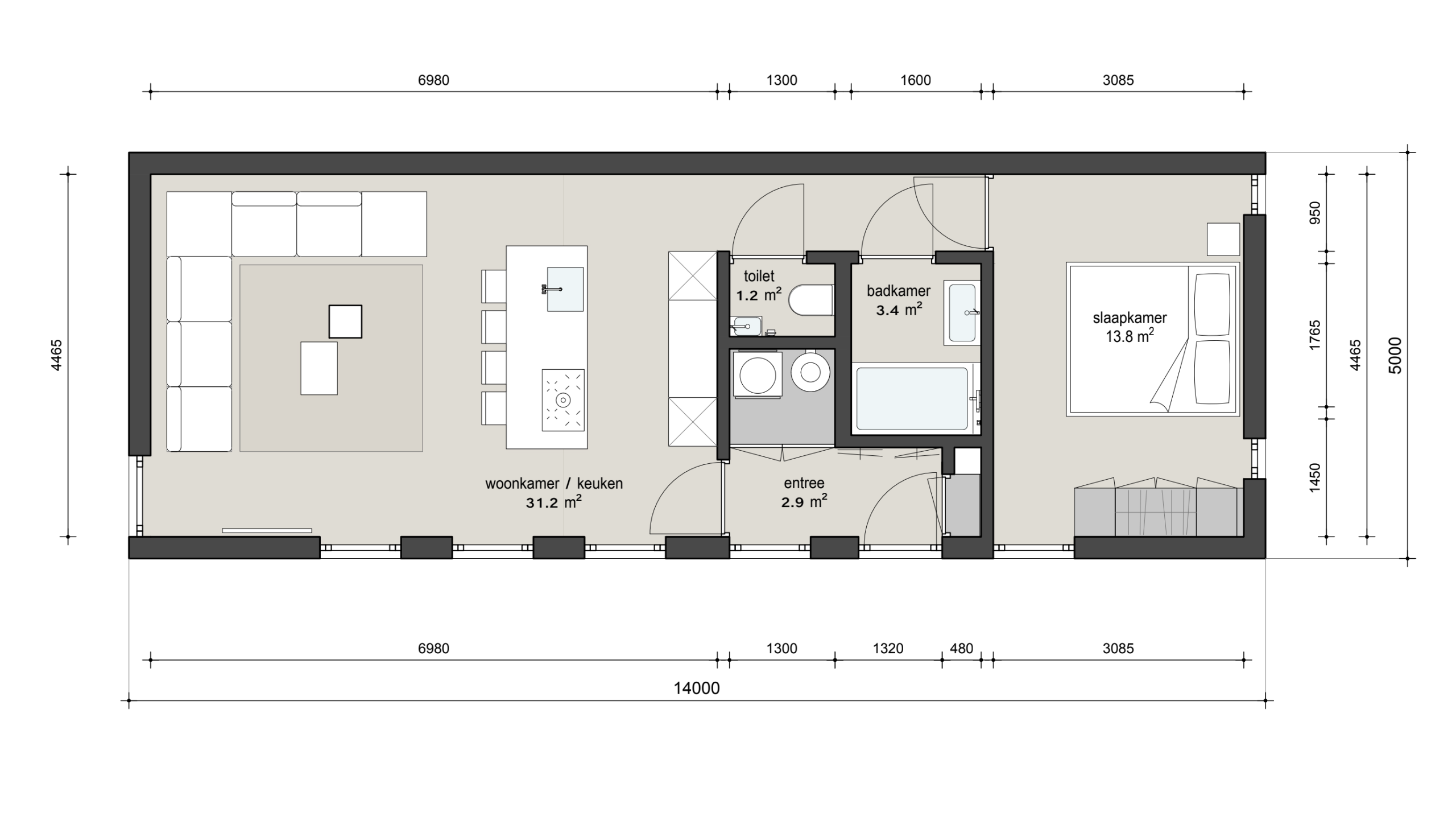
Model 5 – Maximale leefruimte met open indeling

Model 5 is ontworpen voor efficiënt en comfortabel wonen, met alle functies slim gegroepeerd. De open woonkamer met keuken van ca. 31,2 m² vormt één overzichtelijke leefruimte met veel licht en bewegingsvrijheid.

De slaapkamer van 13,8 m² ligt aan de rustige zijde van de woning en biedt voldoende ruimte voor een tweepersoonsbed en kastruimte. Badkamer en toilet zijn compact en praktisch geplaatst bij de entree, wat zorgt voor dagelijks gemak.

Model 5 is ideaal voor wie comfortabel gelijkvloers wil wonen met een heldere, compacte opzet.

Personaliseer Model 5 in de configurator en ontvang direct een vrijblijvende offerte.

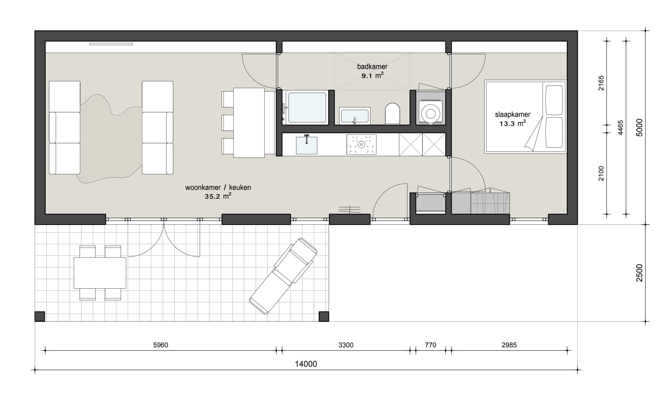
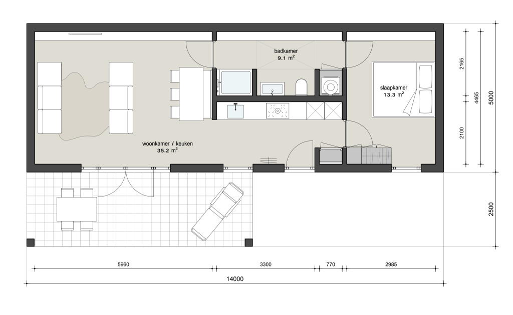
Model 6 | Extra ruime leefruimte met royale badkamer

Model 6 onderscheidt zich door een extra ruime woonkamer met open keuken van ca. 35,2 m², ideaal voor wie graag ruim en open woont. De leefruimte vormt het centrale punt van de woning en biedt volop plek voor een grote zithoek en eettafel.

De slaapkamer van 13,3 m² ligt aan de rustige zijde van de woning. De opvallend ruime badkamer van 9,1 m² zorgt voor extra comfort en bewegingsvrijheid in het dagelijks gebruik.

Model 6 is perfect voor wie maximale leefruimte en comfort belangrijk vindt, met een rustige en overzichtelijke indeling.

Personaliseer Model 6 in de configurator en ontvang direct een vrijblijvende offerte.

70 m² personaliseren en direct offerte ontvangen

Wilt u weten welke indeling het beste past bij uw situatie?
Personaliseer de 70 m² mantelzorgwoning in onze configurator en ontvang direct een vrijblijvende offerte.