63 m² Mantelzorgwoning

Slim ontworpen voor comfortabel wonen

De 63 m² mantelzorgwoning van Kaynad is ontworpen voor zelfstandig en gelijkvloers wonen, met maximale flexibiliteit in indeling en afwerking.


Met vaste afmetingen van 14 meter lang en 4,5 meter breed biedt deze woning een slimme balans tussen leefruimte, privacy en dagelijks gemak.

Kies uit 10 slimme indelingen

Eén woning, tien doordachte woonoplossingen.
Van een open leefruimte tot modellen met extra werkruimte, royale badkamer of extra bergruimte – er is altijd een indeling die past bij uw situatie.

Volledig personaliseerbaar via de configurator

Stel uw mantelzorgwoning zelf samen en ontvang direct een persoonlijke prijsindicatie.

Gevelafwerkingen

  • Kunststof

  • Composiet

  • Hout

  • Steenstrip

  • Metselwerk look

  • Strak wit pleisterwerk

Wat is inbegrepen

  • Plafondverwarming

  • Elektra & waterleidingen

  • Witte kozijnen met HR++ glas

  • Volledig afgewerkte badkamer & toilet

  • Prefab productie in Weert

  • Plaatsing binnen 1 dag

Niet inbegrepen

  • Vergunning & fundering

  • Transport & plaatsing

  • Keuken en PVC-vloer

  • Schilderwerk & buitenafwerking

Alle onderdelen zijn mee te nemen in een volledig gepersonaliseerde offerte.

Kies uw indeling

63 m² Mantelzorgwoning | Comfortabel, Flexibel & Volledig Personaliseerbaar

Afmetingen: 14 m lang × 4.5 m breed × ca. 3 m hoog

De 63 m² mantelzorgwoning van Kaynad is ontworpen voor comfortabel en zelfstandig wonen, met maximale flexibiliteit in indeling en afwerking.
Met vaste afmetingen van 14 meter lang en 4,5 meter breed biedt dit model een slimme balans tussen leefruimte, privacy en gebruiksgemak.

Dankzij 10 verschillende indelingen kiest u precies het woonconcept dat past bij uw situatie – van een open leefruimte tot modellen met extra scheiding tussen wonen en slapen.

Eén woning, tien slimme indelingen

Elke indeling van de 63 m² mantelzorgwoning heeft een eigen karakter. Hieronder lichten wij de modellen stap voor stap toe.

Volledig personaliseerbaar via de configurator

De 63 m² mantelzorgwoning wordt niet aangeboden als vast pakket.
Via onze online configurator stelt u de woning volledig zelf samen en ontvangt u direct een persoonlijke prijsindicatie.

Afwerking & Interieurkeuzes

De mantelzorgwoning is volledig naar wens samen te stellen. U kiest uit diverse gevelafwerkingen zoals kunststof, composiet, hout, steenstrip, metselwerk look of strak wit pleisterwerk. Ook het interieur is flexibel: de badkamer is beschikbaar in wit of antraciet, de keuken kan standaard of volledig op maat worden uitgevoerd en u bepaalt zelf of u kiest voor sleutelklaar wonen of een gedeeltelijk afgewerkte oplevering.

Inclusief in de Standaardprijs

  • Plafondverwarming

  • Elektra & waterleidingen

  • Witte kozijnen met HR++ glas

  • Volledig afgewerkte badkamer & toilet

  • Prefab productie in Weert

  • Plaatsing in 1 dag

Niet inbegrepen in de standaardprijs

  • Vergunning & fundering

  • Transport & plaatsing

  • Keuken & PVC-vloer

  • Schilderwerk & buitenafwerking

Alle onderdelen kunnen worden meegenomen in een volledig gepersonaliseerde offerte via de configurator.

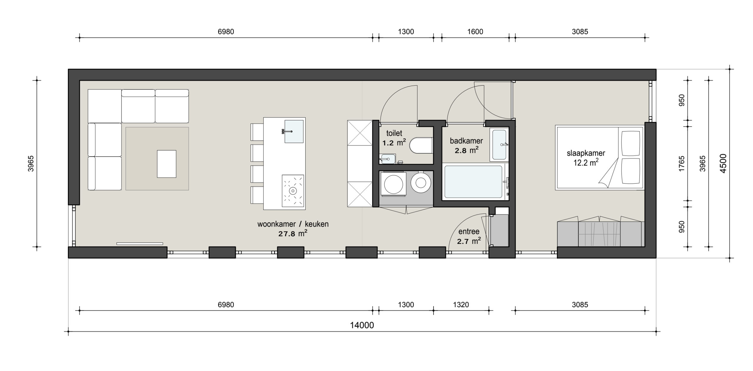
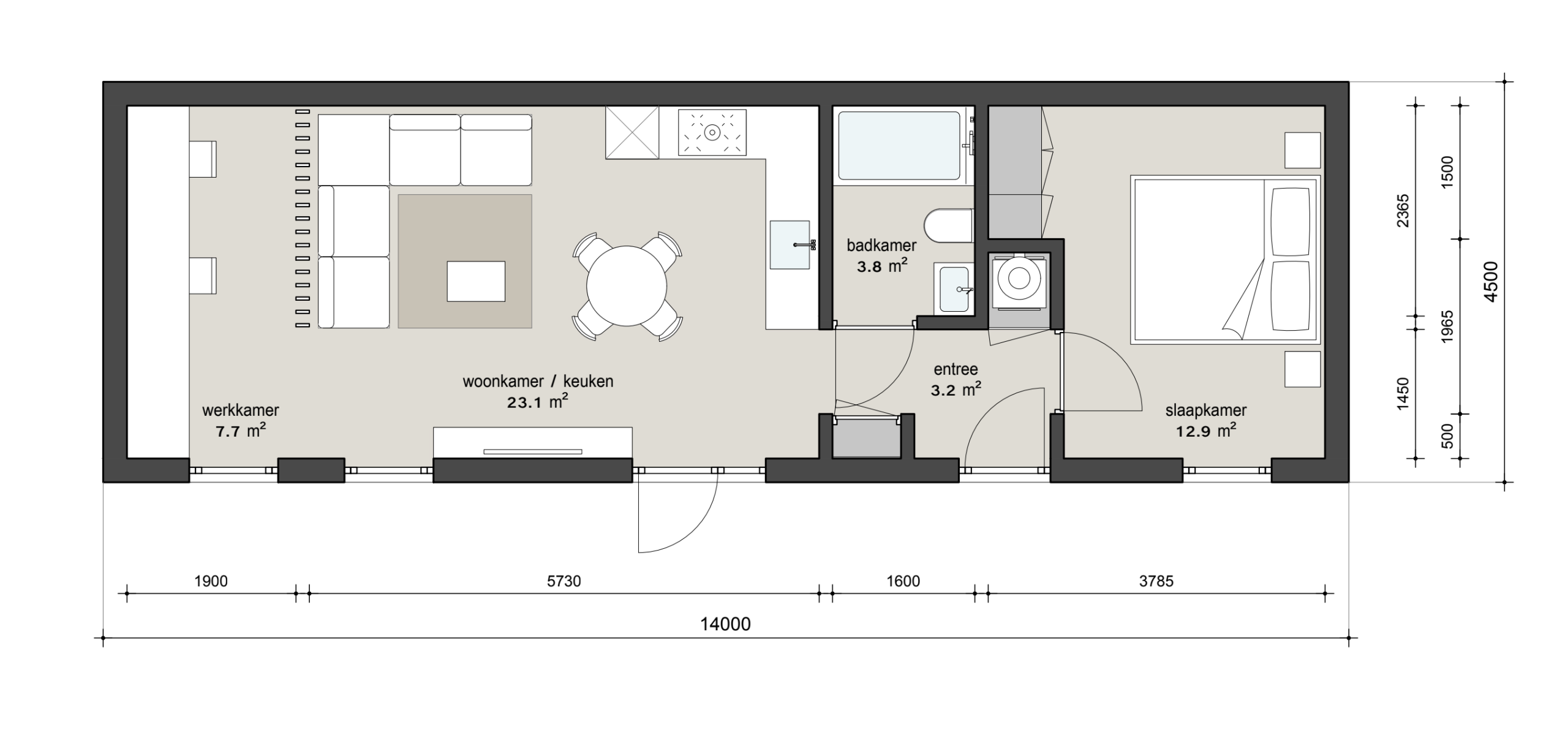
Model 1 | Open leefruimte met rustige slaapzone

Model 1 is ontworpen voor comfortabel en overzichtelijk wonen. De open woonkamer met keuken vormt één ruime leefzone van circa 26,9 m², met voldoende plek voor een eettafel en een comfortabele zithoek. De indeling voelt licht en open aan en biedt een prettige verbinding met buiten.

Aan de rustige zijde van de woning bevindt zich de slaapkamer van 12,9 m², logisch gescheiden van het woongedeelte. De badkamer van 4,9 m² en de entree zijn centraal gepositioneerd, wat zorgt voor dagelijks gemak en een duidelijke looproute.

Deze indeling is ideaal voor wie gelijkvloers wil wonen met een heldere scheiding tussen wonen, slapen en sanitair.

Personaliseer Model 1 in de configurator en ontvang direct een vrijblijvende offerte.

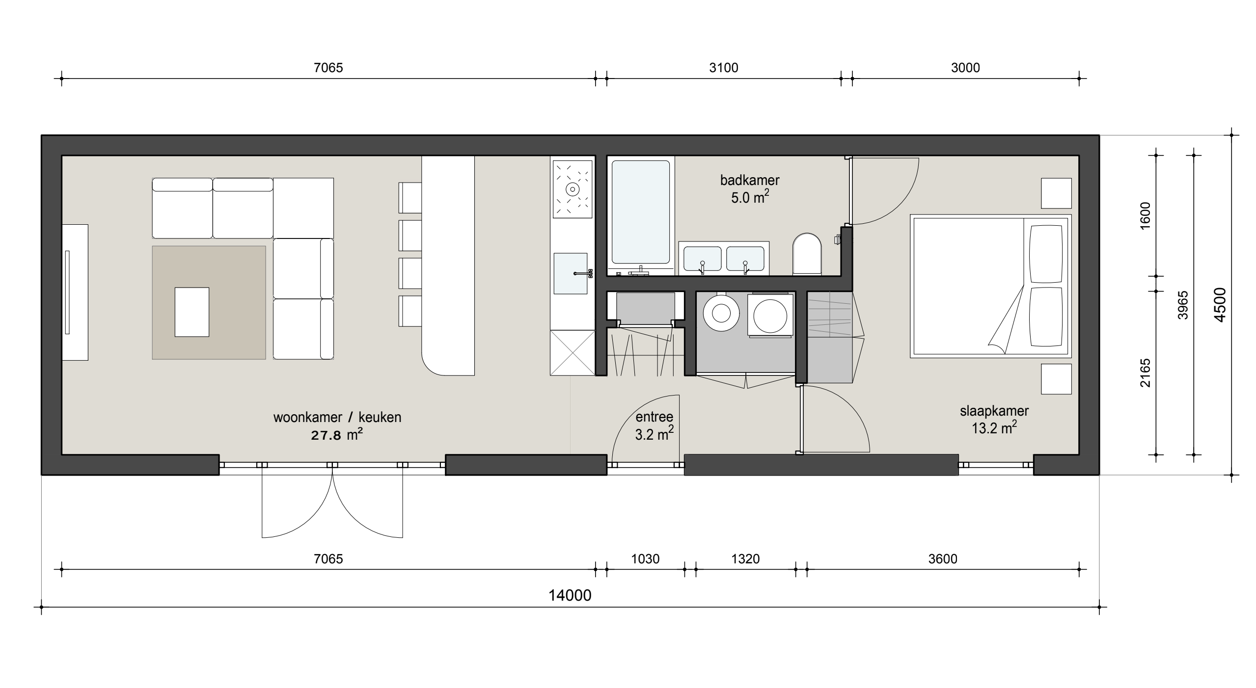
Model 2 – Slim ingedeeld & extra ruim woongevoel

Model 2 van de 63 m² mantelzorgwoning biedt een open en efficiënt ingedeelde leefruimte met een royale woonkamer en keuken van circa 27,8 m². De keuken met eilandopstelling zorgt voor extra werk- en zitruimte en sluit naadloos aan op de woonkamer. De woning beschikt over een comfortabele slaapkamer van 13,2 m², een complete badkamer en een centrale entree, waardoor privacy en loopcomfort optimaal zijn. Dankzij de slimme indeling voelt deze woning licht, ruim en praktisch aan voor dagelijks gebruik.

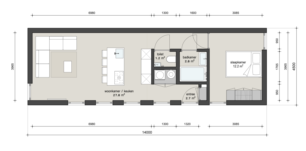
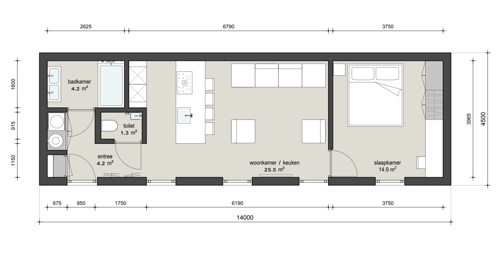
Model 3 – Comfortabel wonen met extra ruime slaapkamer

Model 3 van de 63 m² mantelzorgwoning combineert een compacte leefruimte met extra comfort in de privézone. De woonkamer met keuken van circa 25,5 m² is praktisch ingericht met een eilandkeuken die zorgt voor een open en moderne uitstraling. De ruime slaapkamer van 14,9 m² biedt plaats voor een tweepersoonsbed en royale kastruimte. Dankzij de aparte toiletruimte, de centraal gelegen entree en de efficiënte routing is deze indeling bijzonder geschikt voor comfortabel en overzichtelijk dagelijks wonen.

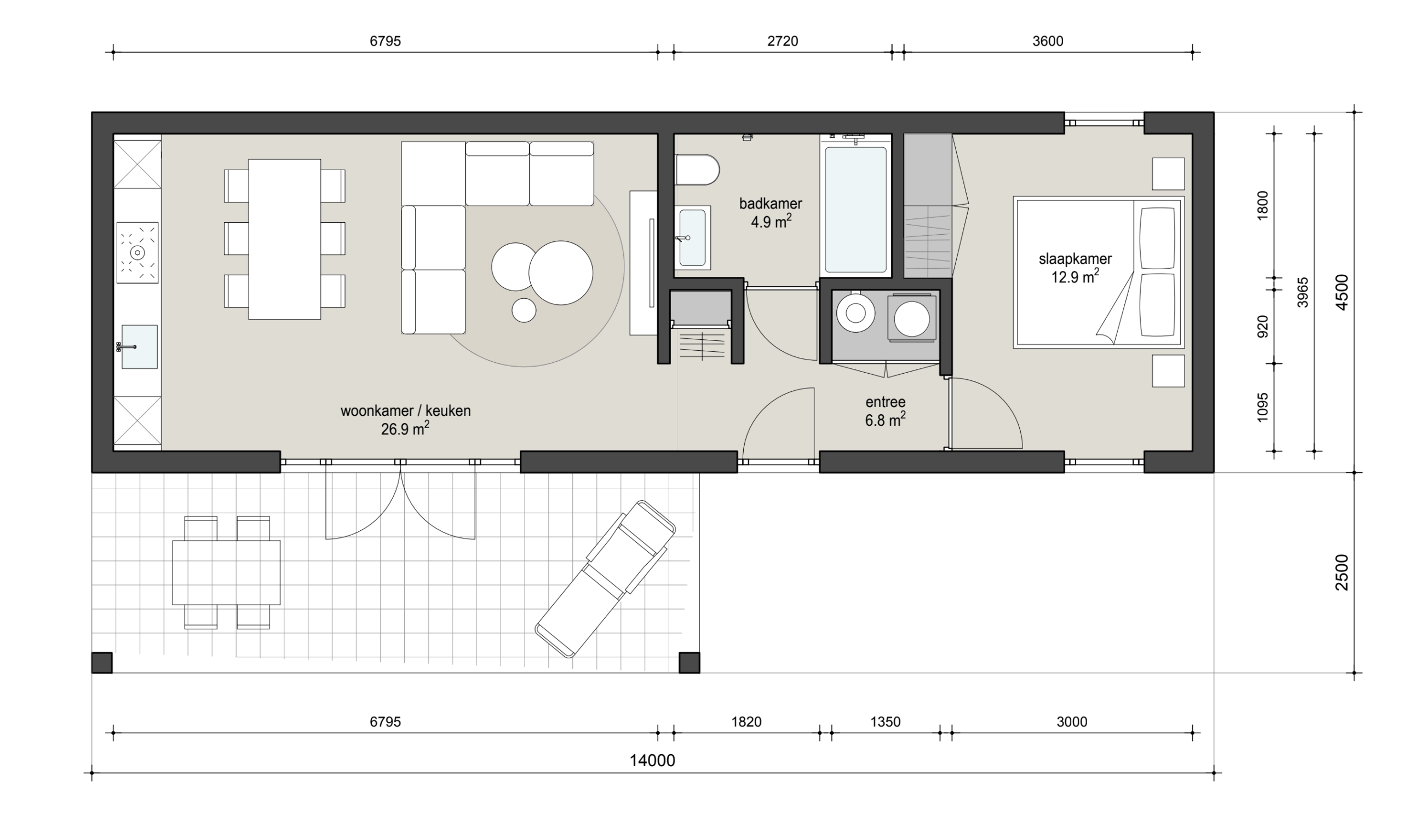
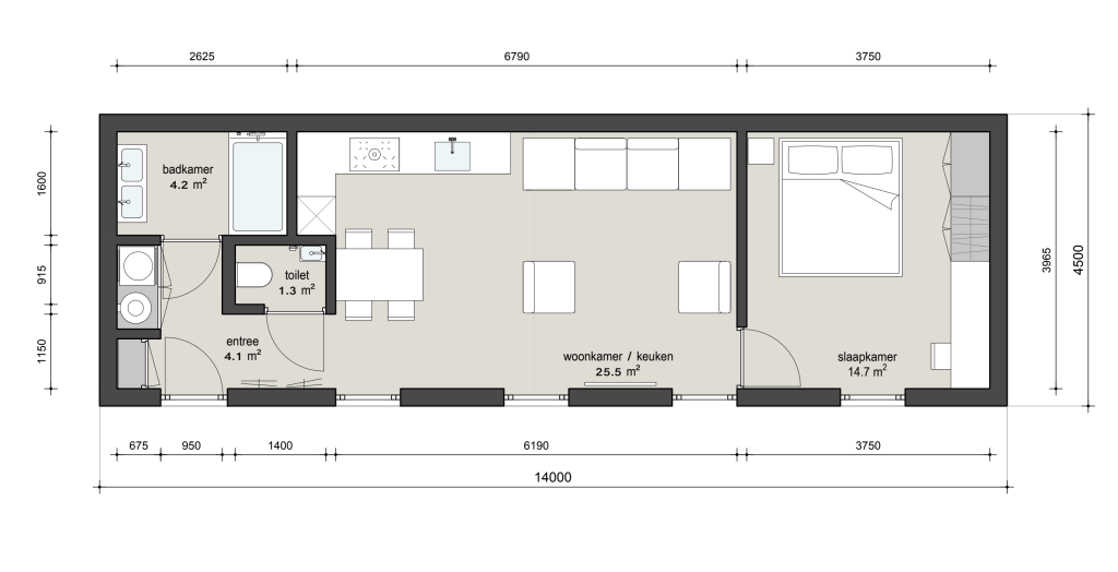
Model 4 – Open leefruimte met extra privacy

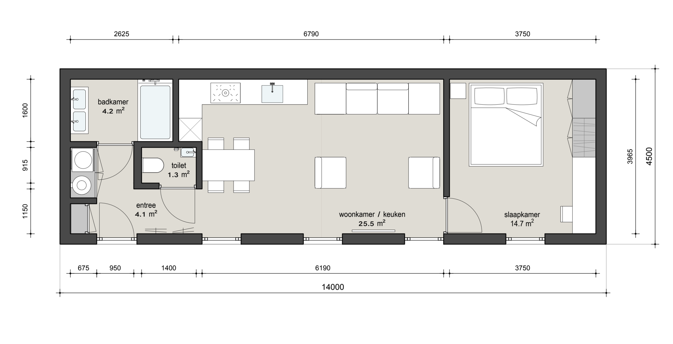
Model 4 van de 63 m² mantelzorgwoning biedt een uitgebalanceerde indeling met een open woonkamer en keuken van circa 25,5 m². De keuken is compact maar functioneel geplaatst en sluit direct aan op de leefruimte, wat zorgt voor een ruimtelijk gevoel. De slaapkamer van 14,7 m² ligt aan de rustige zijde van de woning en biedt voldoende ruimte voor een tweepersoonsbed en kastruimte. Dankzij de aparte toiletruimte, praktische entree en logische routing is deze indeling ideaal voor comfortabel en zelfstandig wonen, met duidelijke scheiding tussen wonen en slapen.

Model 4 – Extra ruime badkamer & royale slaapkamer

Deze indeling van de mantelzorgwoning van 58 m² combineert comfort met functionaliteit.
De ruime woonkamer met open keuken (24,8 m²) vormt het hart van de woning en biedt veel daglicht en bewegingsvrijheid.

Het separate toilet en de badkamer zorgen voor extra gemak en privacy, terwijl de slaapkamer van 11,1 m² rust en comfort biedt.
Deze indeling is ideaal voor zelfstandig wonen met een duidelijke scheiding tussen wonen en slapen.

Model 5 – Compact sanitair, maximale leefruimte

Model 5 is ontworpen voor wie zoveel mogelijk leefruimte wil combineren met een compacte en efficiënte indeling. De woonkamer met open keuken van circa 27,8 m² vormt het hart van de woning en biedt ruimte voor een kookeiland, eethoek en comfortabele zithoek. Dankzij de centrale plaatsing van keuken en leefruimte ontstaat een open en lichte woonbeleving.

Het sanitair is slim gegroepeerd in een compacte badkamer en aparte toiletruimte, wat zorgt voor een efficiënte benutting van de beschikbare meters. De slaapkamer van 12,2 m² ligt aan de rustige zijde van de woning en biedt voldoende ruimte voor een tweepersoonsbed en kastruimte. Met een praktische entree en korte looplijnen is Model 5 een ideale keuze voor comfortabel, overzichtelijk en zelfstandig wonen.

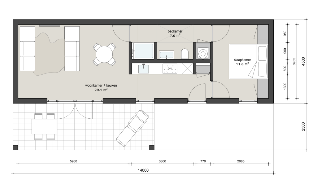
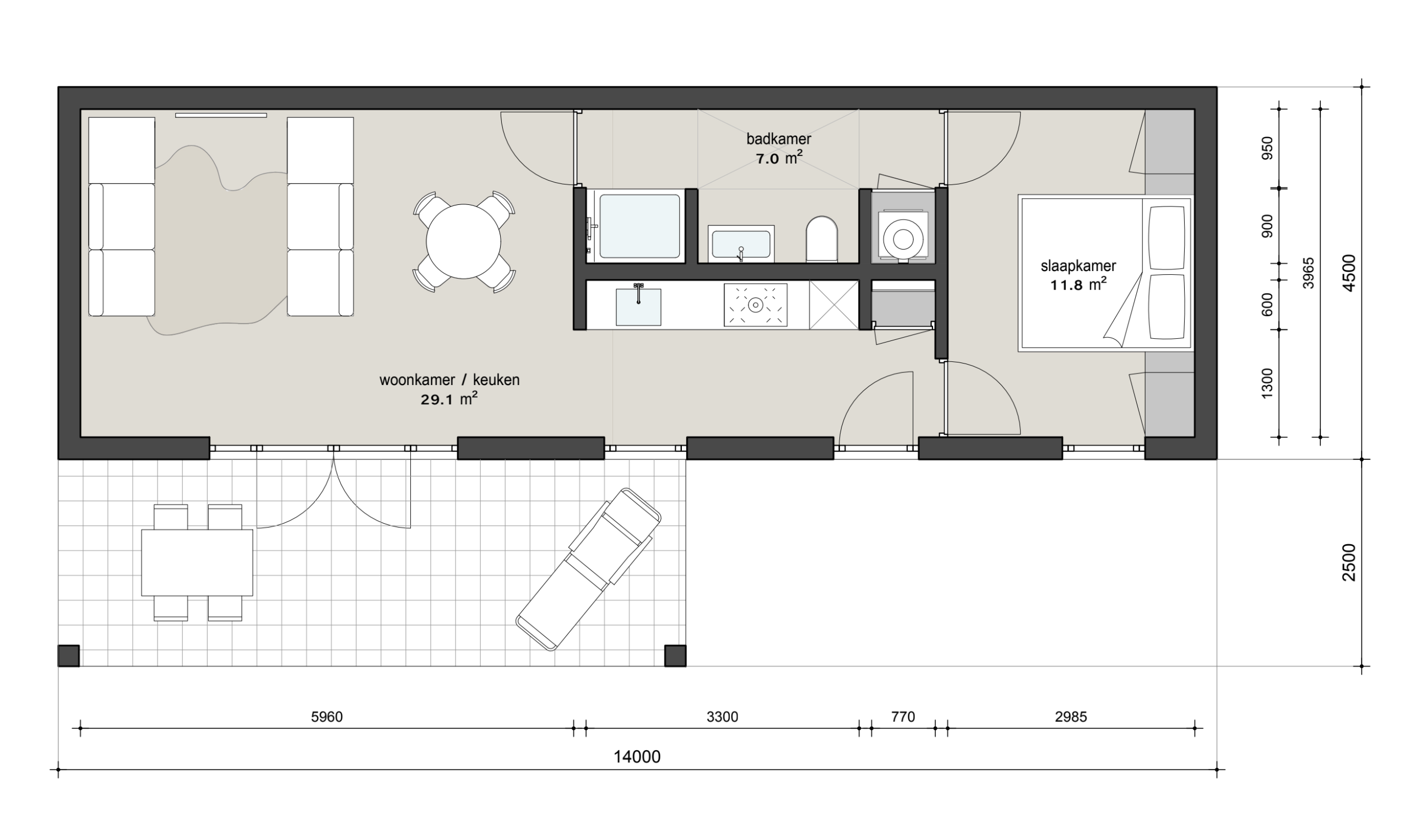
Model 6 – Extra ruime badkamer en royale leefruimte

Model 6 onderscheidt zich door een extra ruime badkamer en een zeer royale leefruimte. De woonkamer met open keuken van circa 29,1 m² vormt een open en comfortabele leefomgeving met voldoende ruimte voor een eethoek en zithoek. De indeling is overzichtelijk en zorgt voor een rustige, huiselijke sfeer met veel bewegingsvrijheid.

De badkamer van maar liefst 7,0 m² biedt extra comfort en flexibiliteit, ideaal voor wie waarde hecht aan ruimte en gemak in het dagelijks gebruik. De slaapkamer van 11,8 m² ligt aan de rustige zijde van de woning en is praktisch ingericht voor een tweepersoonsbed en kastruimte. Dankzij de korte looplijnen en duidelijke zones is Model 6 bijzonder geschikt voor comfortabel, zelfstandig en zorgeloos wonen.

Model 7 – Met extra werkkamer en compacte indeling

Model 7 is ideaal voor wie naast comfortabel wonen ook behoefte heeft aan een aparte werk- of hobbyruimte. De woning beschikt over een praktische werkkamer van circa 7,2 m², perfect als thuiskantoor, logeerkamer of extra opbergruimte. De woonkamer met open keuken van ongeveer 23,0 m² is overzichtelijk ingedeeld en biedt een fijne balans tussen zit- en eetgedeelte.

De badkamer van 3,8 m² is efficiënt ingericht en direct bereikbaar vanuit de entree. De slaapkamer van 12,9 m² ligt aan de rustige zijde van de woning en biedt voldoende ruimte voor een tweepersoonsbed en kastruimte. Dankzij de duidelijke zonering en compacte looplijnen is Model 7 een slimme keuze voor mantelzorg, zelfstandig wonen of werken aan huis.

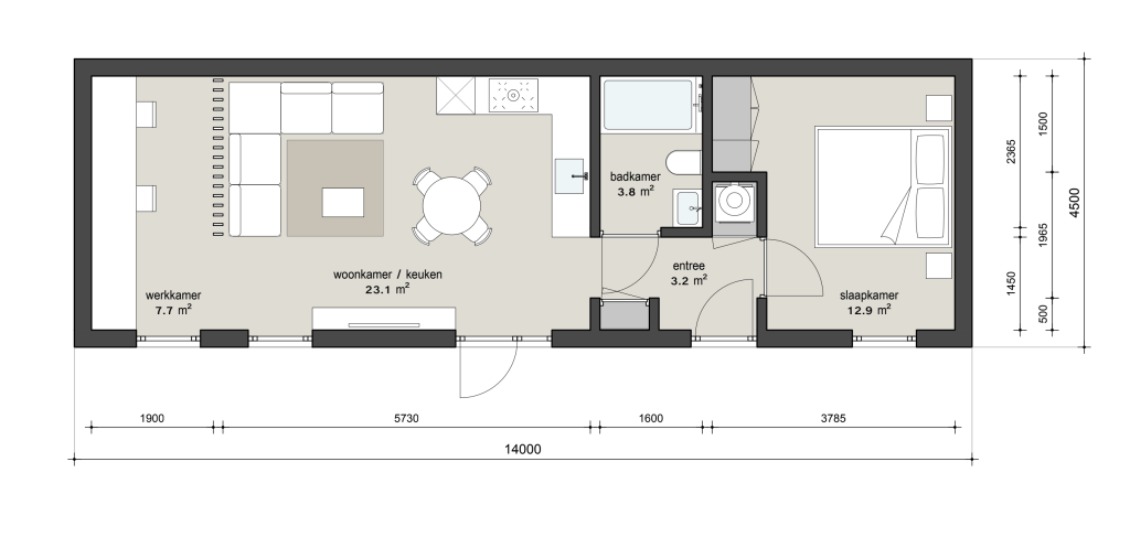
Model 8 – Wonen en werken gecombineerd in één slim ontwerp

Model 8 is ontworpen voor wie comfortabel wonen wil combineren met een volwaardige werkruimte. De aparte werkkamer van circa 7,7 m² is ideaal als thuiskantoor, praktijkruimte of rustige hobbykamer. De woonkamer met open keuken van 23,1 m² vormt het hart van de woning en biedt een lichte, overzichtelijke leefruimte met directe verbinding tussen koken, eten en ontspannen.

De badkamer van 3,8 m² is praktisch ingedeeld en centraal geplaatst, direct naast de entree. De slaapkamer van 12,9 m² ligt aan de rustige zijde van de woning en biedt voldoende ruimte voor een tweepersoonsbed en kastruimte. Dankzij de duidelijke scheiding tussen wonen, werken en slapen is Model 8 een zeer functionele mantelzorgwoning die geschikt is voor zowel zelfstandig wonen als werken aan huis.

Model 10 – Praktisch ingedeeld met extra bergruimte

Model 10 onderscheidt zich door de aparte techniek/berging van 5,4 m², ideaal voor extra opslag en installaties. De woning beschikt over een gescheiden woonkamer (14,7 m²) en keuken (12,0 m²), wat zorgt voor rust en overzicht. De slaapkamer van 9,5 m² ligt aan de rustige zijde van de woning. Dankzij de centrale entree en logische indeling is dit model zeer geschikt voor comfortabel en zelfstandig wonen.

Ontvang direct uw persoonlijke offerte

Wilt u weten welke indeling en afwerking het beste bij u past?