180 m² Moderne Prefab Woning – Luxe, energiezuinig & snel geplaatst

Slim ontworpen voor modern comfort

De 180 m² prefab woning is ontworpen voor gezinnen die ruim, licht en energiezuinig willen wonen.


Met zijn moderne architectuur, strakke pleistergevel en warme houten accenten straalt de woning rust en kwaliteit uit.


De Kerto LVL-houtskeletconstructie zorgt voor een solide structuur, uitstekende isolatie en een gezond binnenklimaat — volledig BENG-conform, BBL-gecertificeerd en gecontroleerd door Kwaliteitsborg

Wat is inbegrepen

Deze woning wordt standaard geleverd als asis nieuwbouw, inclusief:

 

Lucht-water warmtepomp

WTW-unit (warmteterugwinning)

Vloerverwarming door de gehele woning

Elektrische installatie en waterleidingen

Binnen- en buitendeuren (wit)

Waterdichte wandpanelen in badkamer & toilet

Standaard badkamermeubel

Gevelafwerking: pleisterwerk inbegrepen

 

  • Optioneel: houten of steenstripgevel tegen meerprijs.

Niet inbegrepen

Kaynad kan onderstaande werkzaamheden volledig uitvoeren voor een sleutelklaar resultaat:

 

Vergunning & voorwaarden

Buitenriool

Fundering met grondwerken

Transport en montage op locatie

Schilderwerken

Keuken

PVC-vloer en plinten

Overkapping of carport

 

Een idee voor een woning, maar nog vragen?
Of je nu droomt van een compacte woning, een ruime gezinswoning of een stijlvolle mantelzorgwoning — bij Kaynad staan we klaar om je te helpen. Vraag vrijblijvend informatie aan of plan een gesprek met ons in. Samen brengen we jouw woonwensen tot leven.
Please enable JavaScript in your browser to complete this form.
name

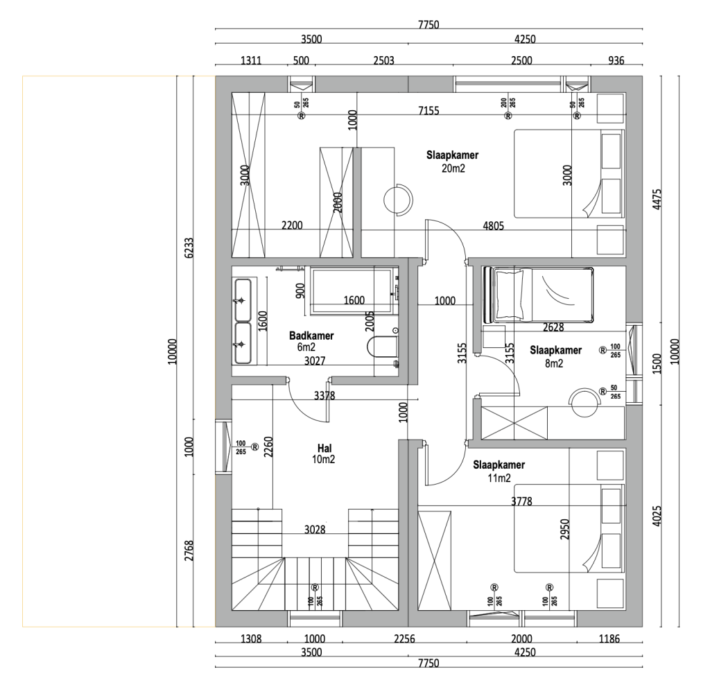
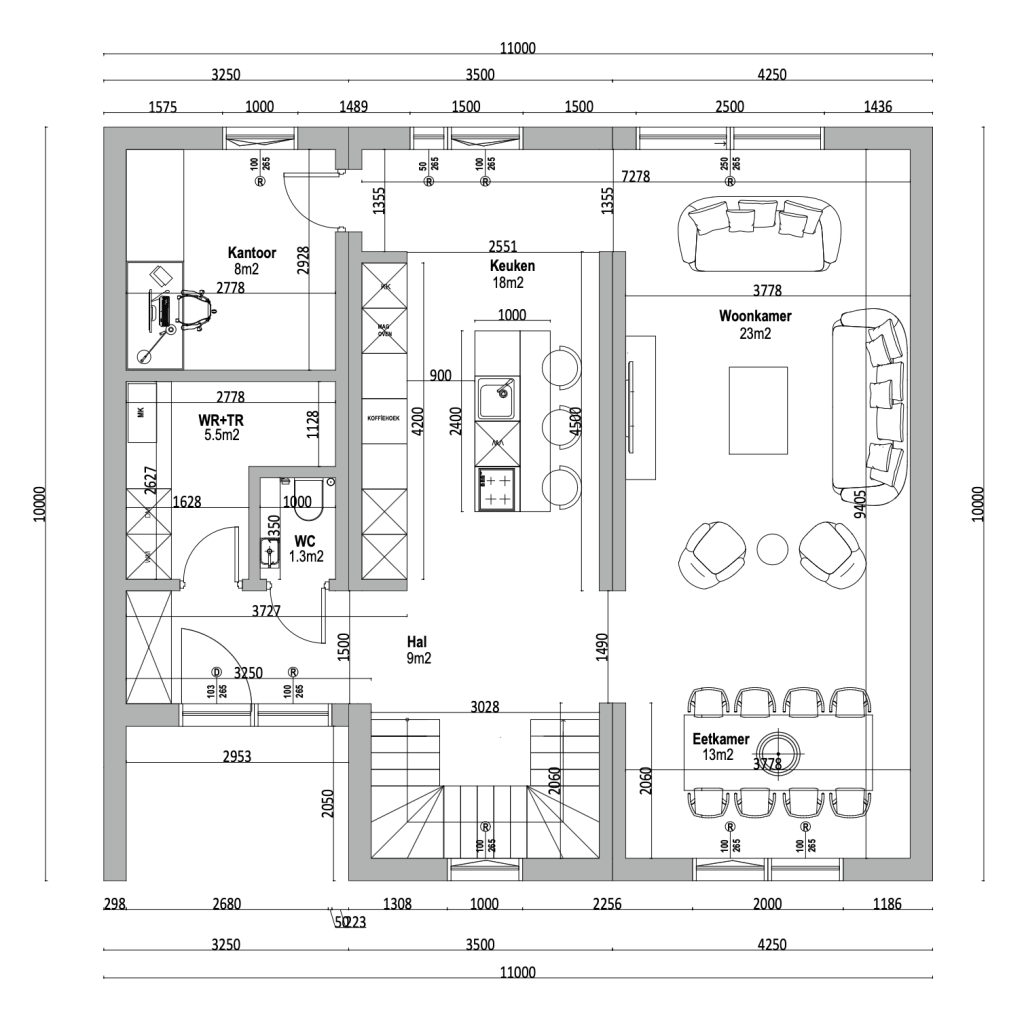
Indeling & Ruimtegebruik

Het ontwerp combineert stijl en functionaliteit.
Beneden vindt u een open woonkamer met tuinzicht, een moderne keuken met kookeiland en eethoek, een thuiskantoor en praktische berging.
Boven bevinden zich vier slaapkamers, een ruime badkamer met bad en douche en een centrale hal — alles ontworpen met oog voor design, comfort en efficiëntie.

 

Bouwinformatie

Constructie: Kerto LVL houtskeletbouw

Productietijd: 6–8 weken

Montage: sleutelklaar geplaatst binnen 1 dag

Certificering: BBL-gecertificeerd, gecontroleerd door Kwaliteitsborg

Energieprestatie: volledig BENG-conform

Prijs & maatwerk

Elke kavel is uniek.
Fundering, transport en extra opties worden apart berekend.
Wilt u een complete offerte inclusief fundering, transport en gevelopties?
Vul het formulier in en ontvang binnen enkele dagen uw persoonlijke prijsvoorstel.

Bezoek onze fabriek in Weert

Ontdek hoe wij prefab woningen produceren: duurzaam, snel en met oog voor detail.
Plan een afspraak of vraag direct een vrijblijvende offerte aan.

Kaynad Prefab Modulair Bouw B.V.
Duurzaam bouwen – Slim geproduceerd – Snel geleverd

Stel je vraag
Vul het formulier in voor informatie, prijzen of een persoonlijk gesprek.
Please enable JavaScript in your browser to complete this form.
name

180 m² Moderne Prefab Woning – Luxe, energiezuinig en toekomstbestendig

Comfort, licht en duurzaamheid in één ontwerp

De 180 m² prefab woning is ontworpen voor wie ruim, modern en duurzaam wil wonen.
Met een strakke pleistergevel gecombineerd met warme houten accenten biedt deze woning een tijdloze uitstraling en een comfortabel binnenklimaat.

Dankzij de Kerto LVL-houtskeletbouw is de woning licht, sterk en volledig BENG-conform.
Alles wordt geproduceerd in onze fabriek in Weert, wat zorgt voor een korte bouwtijd en constante kwaliteit.

Standaard inbegrepen in de prijs

Deze prefab woning wordt compleet geleverd, inclusief:

  • Lucht-water warmtepomp

  • WTW-unit (warmteterugwinning)

  • Vloerverwarming door de hele woning

  • Elektrische installatie en waterleidingen

  • Binnen- en buitendeuren (wit)

  • Waterdichte wandpanelen in badkamer & toilet

  • Standaard badkamermeubel

  • Gevelafwerking: pleisterwerk

Optioneel: houten of steenstripgevel tegen meerprijs.

Niet inbegrepen in de standaardprijs

Wilt u een sleutelklaar resultaat? Kaynad kan onderstaande werken volledig verzorgen:

  • Vergunning en gemeentelijke voorwaarden

  • Buitenriolering en fundering met grondwerk

  • Transport en montage op locatie

  • Keuken, schilderwerk en PVC-vloer

  • Overkapping of carport

Comfort, licht en duurzaamheid in één ontwerp

Deze 180 m² prefab woning is ontworpen met oog voor ruimte, licht en design. Op de begane grond vindt u een open woonkamer met tuinzicht, een moderne keuken met kookeiland en eethoek, een stijlvol thuiskantoor en praktische berging. Op de verdieping zijn vier slaapkamers, een elegante badkamer met bad en douche en een ruime hal die het geheel samenbrengt tot een doordacht en harmonieus ontwerp.

Een idee voor een woning, maar nog vragen?
Of je nu droomt van een compacte woning, een ruime gezinswoning of een stijlvolle mantelzorgwoning — bij Kaynad staan we klaar om je te helpen. Vraag vrijblijvend informatie aan of plan een gesprek met ons in. Samen brengen we jouw woonwensen tot leven.
Please enable JavaScript in your browser to complete this form.
name

Technische details & bouwinformatie

Constructie: Kerto LVL houtskeletbouw
Bouwtijd: Productie binnen 6–8 weken
Montage: Sleutelklaar geplaatst binnen 1 dag
Certificering: BBL-gecertificeerd, gecontroleerd door Kwaliteitsborg
Energieprestatie: Volledig BENG-conform (Bijna Energie Neutraal Gebouw)
Gevelafwerking: Standaard pleisterwerk – optioneel steenstrip of houten gevel
Extra optie: Overkapping mogelijk tegen meerprijs

Prijs & maatwerk

Elke kavel is uniek.
Fundering, transport en extra opties worden individueel berekend.
Vraag nu een vrijblijvende offerte aan en ontvang binnen enkele dagen uw persoonlijke prijsvoorstel.

Bezoek onze fabriek in Weert

Ervaar zelf hoe wij prefab woningen bouwen: duurzaam, snel en met oog voor detail.
Plan een bezoek of vraag direct uw offerte aan.

Kaynad Prefab Modulair Bouw B.V.
Duurzaam bouwen – Slim geproduceerd – Snel geleverd

Stel je vraag
Vul het formulier in voor informatie, prijzen of een persoonlijk gesprek.
Please enable JavaScript in your browser to complete this form.
name