108 m² Prefab Woning – Type C

Modern, energiezuinig en volledig prefab

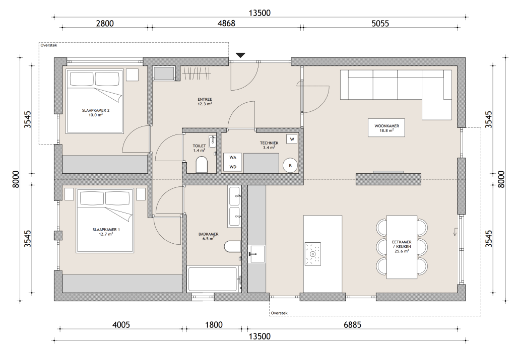
Deze prefab woning van 108 m² is ideaal voor gezinnen die ruim, comfortabel en energiezuinig willen wonen.
Met twee ruime slaapkamers, een lichte woonkamer, een open keuken met eetruimte, een moderne badkamer met bad én inloopdouche en een royale entree is dit ontwerp helemaal klaar voor de toekomst.

De woning wordt volledig geproduceerd in onze fabriek in Weert met een duurzame Kerto LVL houtconstructie en volgens BENG-normen.
Zo bent u verzekerd van constante kwaliteit en een snelle bouwtijd.

Voor Gevel
Achter Gevel
Linker Gevel
Rechter Gevel

Wat is inbegrepen

Deze woning wordt geleverd als asis nieuwbouw, inclusief alle standaard werkzaamheden.

Lucht-water warmtepomp

MV- of WTW-unit

Elektrische installatie & waterleidingen

Binnen- en buitendeuren (wit)

Volledig afgewerkte badkamer met bad + inloopdouche

Buitenmuurafwerking: pleisterwerk

Materialen uit het standaardpakket kunnen worden bekeken in onze productlijst.

 

Niet inbegrepen

Deze onderdelen zijn niet inbegrepen, maar kunnen volledig door Kaynad worden uitgevoerd.

Vergunningen & gemeentelijke voorwaarden

Buitenriolering

Fundering (afhankelijk van bodemonderzoek)

Transport & plaatsing

Maatwerk keuken

Binnen schilderwerk

Buitenbestrating & terras

Plinten en extra afwerking

PVC vloer 

 

Kaynad kan alle werkzaamheden uitvoeren voor een volledig sleutelklaar project.

Praktische informatie

Constructie: Kerto LVL houtskelet
Bouwtijd: 6–12 weken
Montage: Sleutelklaar in 1 dag
Certificering: BBL, gecontroleerd door Kwaliteitsborg
Energieprestatie: Volledig BENG-conform
Referentie: Lengel – gerealiseerd project, te bezoeken op afspraak.

 

Transparante prijs & maatwerkopties

Prijs is gebaseerd op het standaardontwerp en standaarduitrusting.
Fundering, transport en overige buitenwerken worden per perceel berekend.

Wilt u een complete offerte inclusief fundering, transport of keukenafwerking?
Vul het formulier in en ontvang binnen enkele dagen een persoonlijk voorstel.

 

Stel je vraag
Vul het formulier in voor informatie, prijzen of een persoonlijk gesprek.
Please enable JavaScript in your browser to complete this form.
name

Offerte of bezoek

Ontdek onze fabriek in Weert en zie hoe wij prefab woningen produceren — snel, duurzaam en met oog voor detail.
Plan direct een afspraak of vraag een vrijblijvende offerte aan.

Kaynad Prefab Modulair Bouw B.V.
Duurzaam bouwen, slim geproduceerd, snel geleverd.

108 m² Prefab Woning – Type C

Modern, energiezuinig en volledig prefab geproduceerd

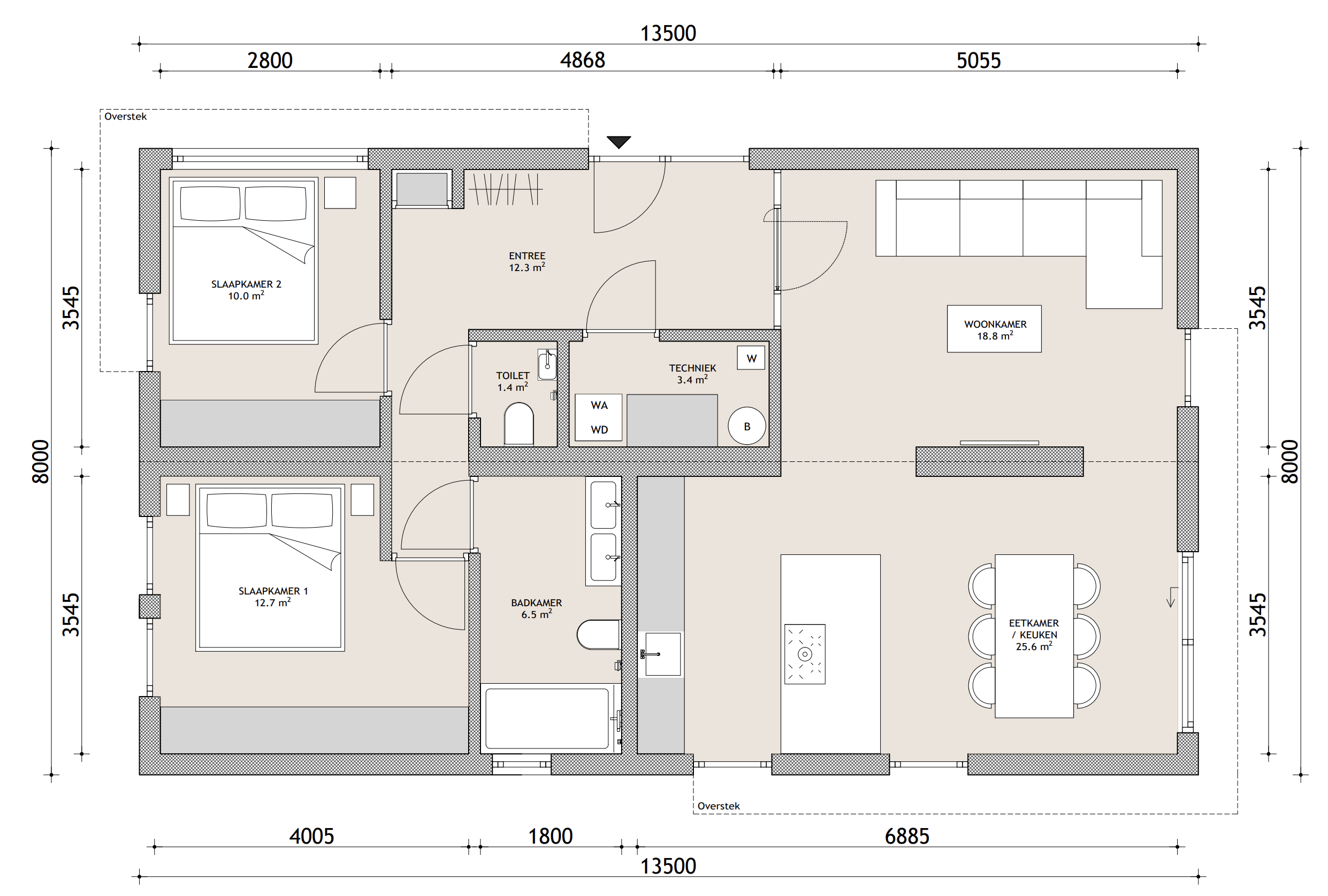
Deze stijlvolle prefab woning van 108 m² is ontworpen voor gezinnen die comfort, ruimte en een moderne leefstijl willen combineren met een energiezuinige woning.
Met twee ruime slaapkamers, een lichte woon- en eetkamer met open keuken, een moderne badkamer met zowel een bad als een inloopdouche én een royale entree, biedt dit model alles voor comfortabel en toekomstbestendig wonen.

De woning wordt volledig in onze fabriek in Weert geproduceerd met een duurzame Kerto LVL houtconstructie, conform de BENG-normen en onder toezicht van een erkende kwaliteitsborg (BBL-certificering).
Zo bent u verzekerd van een duurzame woning, korte bouwtijd en constante bouwkwaliteit.

Standaard inbegrepen in de prijs

Deze prefab woning wordt geleverd als asis nieuwbouw, inclusief alle standaard werkzaamheden en benodigdheden.

    • Lucht-water warmtepomp

    • MV- of WTW-unit (ventilatiesysteem met warmteterugwinning)

    • Elektrische installatie en waterleidingen

    • Binnen- en buitendeuren (wit)

    • Volledig afgewerkte badkamer inclusief bad en inloopdouche

    • Aansluitpunten voor keuken (keuken zelf niet inbegrepen)

    • Binnenmuren in schilderklare staat

    • Buitenmuurafwerking – pleisterwerk (gevelafwerking inbegrepen)

De materialen en voorzieningen in het standaardpakket kunnen op aanvraag worden bekeken in onze productlijst.

Niet inbegrepen in de standaardprijs

De volgende onderdelen zijn niet inbegrepen in de basisprijs, maar kunnen op verzoek volledig door Kaynad Prefab Modulair Bouw B.V. worden uitgevoerd.
Desgewenst voegen wij deze werkzaamheden toe aan de offerte voor een turnkey (sleutelklaar) prijs.

  • Vergunningen & gemeentelijke voorwaarden
  • Buitenriolering
  • Fundering afhankelijk van bodemonderzoek
  • Transport en plaatsing op locatie
  • Keuken (meubels & apparatuur)
  • PVC vloer / overige vloerafwerking
  • Schilderwerken
  • Buitenbestrating & terras
  • Plinten

Kaynad kan al deze werkzaamheden verzorgen — van fundering tot volledige afwerking — zodat u één aanspreekpunt heeft voor een compleet sleutelklaar project.

Een idee voor een woning, maar nog vragen?
Of je nu droomt van een compacte woning, een ruime gezinswoning of een stijlvolle mantelzorgwoning — bij Kaynad staan we klaar om je te helpen. Vraag vrijblijvend informatie aan of plan een gesprek met ons in. Samen brengen we jouw woonwensen tot leven.
Please enable JavaScript in your browser to complete this form.
name
Voor Gevel
Achter Gevel
Linker Gevel
Rechter Gevel

Praktische informatie en referentieproject

Constructie: Kerto LVL houtskeletbouw
Bouwtijd: Productie binnen 6–12 weken
Montage: Sleutelklaar geplaatst binnen 1 dag
Certificering: BBL-gecertificeerd, gecontroleerd door Kwaliteitsborg
Energieprestatie: Volledig BENG-conform (Bijna Energie Neutraal Gebouw)
Referentieproject: Lengel – reeds gerealiseerd en op afspraak te bezoeken

Transparante prijs en maatwerkopties

De genoemde prijs is gebaseerd op het standaardontwerp en de standaarduitrusting.
Omdat elk perceel uniek is, worden fundering, transport en overige buitenwerken apart berekend.

Wilt u een complete offerte inclusief fundering, transport of keukenafwerking? Vul het formulier in en ontvang binnen enkele dagen uw persoonlijke prijsvoorstel.

Stel je vraag
Vul het formulier in voor informatie, prijzen of een persoonlijk gesprek.
Please enable JavaScript in your browser to complete this form.
name

Bezoek onze fabriek of plan een gesprek

Bezoek onze fabriek in Weert en ontdek hoe wij prefab woningen produceren – snel, duurzaam en met oog voor detail.
Plan een afspraak of vraag direct uw vrijblijvende offerte aan.

Kaynad Prefab Modulair Bouw B.V.

Duurzaam bouwen, slim geproduceerd, snel geleverd.